EasyManua.ls Logo

Eaton Digitrip RMS - 1 Supplementary Information; 2 Digitrip RMS and Digitrip OPTIM Trip Units

Eaton Digitrip RMS
24 pages
Print Icon
To Next Page IconTo Next Page
To Next Page IconTo Next Page
To Previous Page IconTo Previous Page
To Previous Page IconTo Previous Page
Loading...
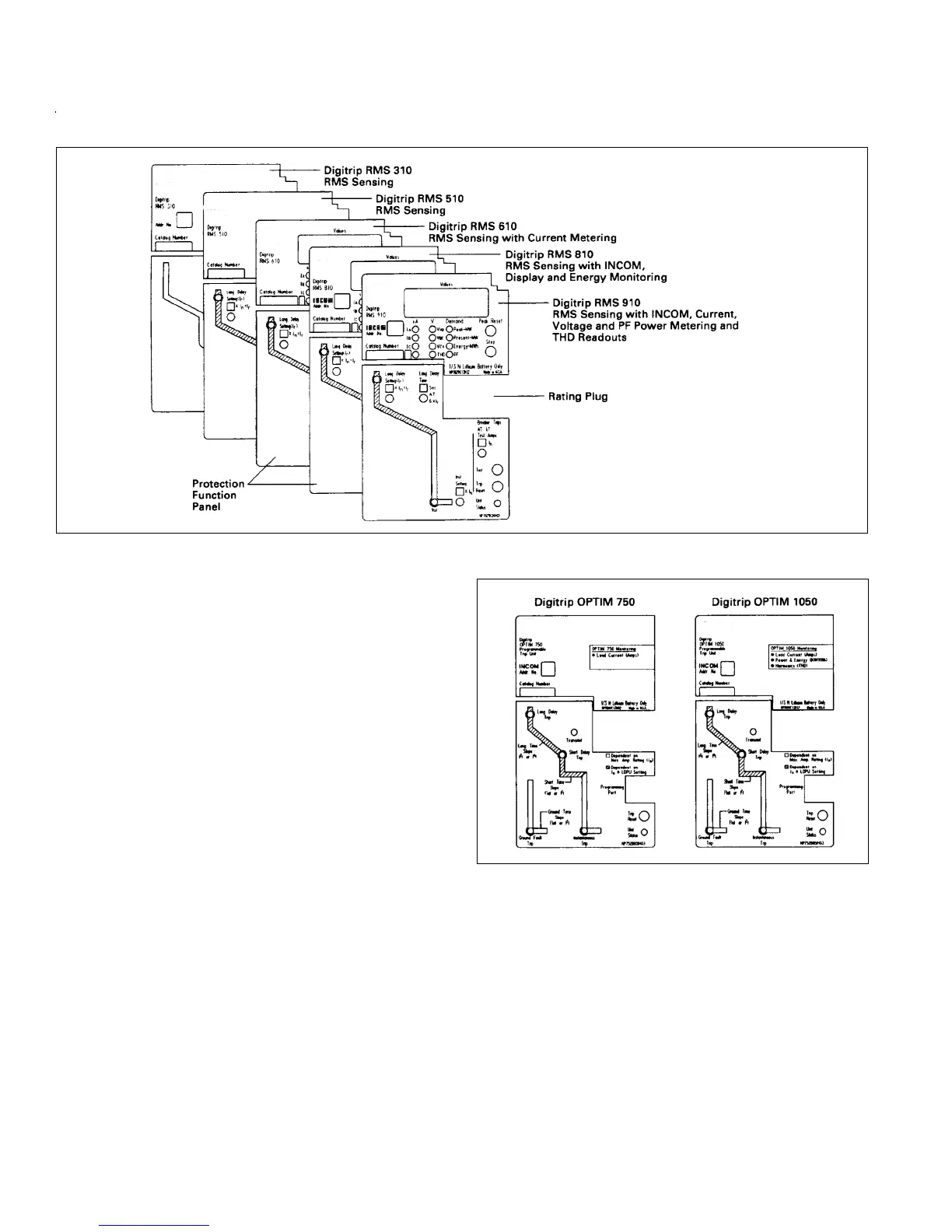
Fig. 2a View of Five Basic Models of the Digitrip RMS Trip Unit
1.0 SUPPLEMENTARY INFORMATION
The instructions contained in this book supplement the
instructions for R- Frame Circuit Breakers cov
ered
in l.L. 29C107 and Connection Diagram 290714.
2.0 DIGITRIP RMS AND DIGITRIP OPTIM TRIP UNITS
This instruction book specically covers the application of
Digitrip RMS and Digitrip OPTIM Trip Units installed in
R- Frame Circuit Breakers as illustrated in Fig. 1.
Digitrip RMS and Digitrip OPTIM Trip Units are ac
devices that employ microprocessor-based technology
that provides true rms current sensing means for proper
correlation with thermal character
istics of conductors and
equipment. The
primary function of the Digitrip Trip Unit is
circuit protection. This is achiev
ed by analyzing the sec-
ondary current signals received from the circuit breaker
current sensors and initiating tr
ip signals to the circuit
breaker shunt trip when pre-set current levels and time
delay settings are exceeded.
In addition to the basic protection function, Digitrip RMS
Trip Unit models 510, 610, 810, 910 and Digitrip OPTIM
750 and 1050, provide mode of trip information and inte-
gral test provisions.
The protection section of the Digitrip Trip Unit can be
equipped with a maximum of ve phase and two ground
(time current) curve shaping adjustments. The exact
Fig. 2b View of the Two Basic Models of the Digitrip
OPTIM Trip Unit
selection of the available protection function adjustments
is optional to satisfy the protection needs of any specic
installation. The short delay and ground fault pick-up
adjustments can be set for either at or I²t response. A
pictorial representation of the applicable time-current
curve for the selected protection functions is provided on
the face of the trip unit for user reference.
On the Digitrip Models 510, 610, 810, 910, 750 and 1050
red LEDs that are imbedded in the Time-Current curves
Eective Date October 2010 Instruction Leaet 29C713E
Eective October 2010
EATON CORPORATION www.eaton.com Page 2

Related product manuals