EasyManua.ls Logo

ELCOS DCA-110 - Operation Modes and Functions; Functions Selection; Manual Operation; Automatic Operation

ELCOS DCA-110
8 pages
Print Icon
To Next Page IconTo Next Page
To Next Page IconTo Next Page
To Previous Page IconTo Previous Page
To Previous Page IconTo Previous Page
Loading...
ELCOS- Parma- Italy - gb - DCA-110
3
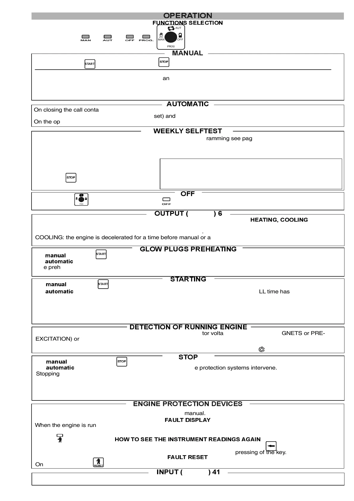
The function selected
with the key is shown by
the associated warning light.
The control unit commands are enabled.
Starting with key stopping with key (it is obtained by pressing once the key).
0$18$/
23(5$7,21
)81&7,2166(/(&7,21
OFF
AUT
MAN
6723
67$57
$8720$7, &
On closing the call contact,
(if set) and
On the opening the call contact,
once the STARTUP DELAY AFTER CALL time (programmed to 1 sec.) has elapsed,
the control unit switches on the glow plugs then starts the engine.
and after the DELAY AFTER CALL OPENING time has elapsed, the engine stops.
:((./<6(/)7(67
ENABLED WITH POWER UNIT IN AUTOMATIC MODE (for programming see page 8 of the Technical Programming
Manual)
the engine starts and continues to run for the WEEKLY TEST TIME (programmed to 3 minutes). This test
will be repeated automatically every week on the exact day and at the hour to which it has been programmed.
During the automatic test cycle, WEEKLY TEST IN PROGRESS is shown on the display.
STOPPING OF ENGINE DURING THE TEST
Press key
If the engine remains stopped for a few days a week, we advise
extending the duration of the weekly test to charge the battery by
means of the battery charging alternator.
WEEKLY TEST STOP: the weekly test is stopped when an anomaly
is displayed on the display.
When key is pressed until Led comes on.
The engine cannot be started in any way and, if running, is stopped
2))
OFF
AUT
MAN
PROTECTIONS
The engine protection function in manual mode can be programmed in two ways:
· Display only of the fault that has intervened WITHOUT STOPPING the engine. The overspeed fault is programmed
with stopping of the engine. It cannot be programmed without stopping of the engine.
· Display of the fault that has intervened WITH ENGINE STOPPING. (The control unit is programmed in this way).
6723
67$57,1*
-
In on closing the call contact and after the STARTUP DELAY AFTER CALL time has elapsed.
To make starting easier, a special circuit establishes a series of programmable startups (programmed to 4
STARTUPS); the number of startups, the length of the pause time and the startup time can be programmed.
If the whole series of attempts is unable to start the engine, at the end of this cycle STARTING FAILURE
is shown on the display and the stop signal is activated.
DXWRPDWLF
STARTING FAILURE
'(7(&7,212)5811,1*(1*,1(
This is obtained by the detection of the battery charger alternator voltage (PERMANENT MAGNETS or PRE-
EXCITATION) or by the signal sent (CAN Bus) from the engine equipped with control unit for electronic control of
the injection system; in this case, the alternator only controls belt breakage and not engine running.
When detection has been made, this disconnects the starter motor and lights the LED .
- In with key .
PDQXDO
-
-
In with key (it is obtained by pressing once the key).
In it is activated automatically before starting.
The preheating action time can be adjusted, the preheating action stops before startup start.
The factory preheating command is inhibited as it has been programmed to zero seconds.
PDQXDO
DXWRPDWLF
*/2:3/8*635(+($7,1*
6723
- .
-
In mode using key (it is obtained by pressing once the key)
In mode on opening the call contact, or when the protection systems intervene.
Stopping can occur in two ways:
With the solenoid deactivated while the engine is running and activated when stopped. This condition is maintained
during the STOP TIME (programmed to 20 seconds) after the engine stopped detection.
With solenoid or electro-valve activated while the engine is running and deactivated when stopped.
This condition is maintained even when the engine is stationary.
PDQXDO
DXWRPDWLF
67$57
67$57
6723
The intervention of the fault is displayed; it can cause the engine to be stopped and activates the general alarm. See
TABLE at page 10 of the TECHNICAL PROGRAMMING manual.
When the engine is running the engine instruments are shown.
When there is a fault, instead of the reading, the display shows the intervened fault message, and the associated
LED flashes.
)$8/7',63/$<
)$8/75(6(7
It is possible to access the reading of the measurements by pressing key for 1 second.
The display will resume showing the previous fault 10 seconds after the last pressing of the key.
On pressing the key , the protection devices and all the locked functions are reactivated.
+2:726((7+(,167580(175($',1*6$*$,1
(1*,1(3527(&7,21'(9,&(6
Can be combined with the GLOW PLUG PREHEATING (factory programming) or functions (to
combine the function see page 5 of the technical programming manual).
HEATING: after starting the engine stays decelerated for a time.
COOLING: the engine is decelerated for a time before manual or automatic stopping. Cooling does not take place
when the engine stops due to a fault.
+($7,1*&22/,1*
287387 
terminal
Can be combined with AVAILABLE FAULT (factory programming) or INHIBITION OF PROTECTION DEVICES.
,1387 
terminal

Related product manuals