EasyManua.ls Logo

Electra DNG 100 - CD 140 DCI Indoor Unit Wiring

Electra DNG 100
149 pages
Print Icon
To Next Page IconTo Next Page
To Next Page IconTo Next Page
To Previous Page IconTo Previous Page
To Previous Page IconTo Previous Page
Loading...
9-3
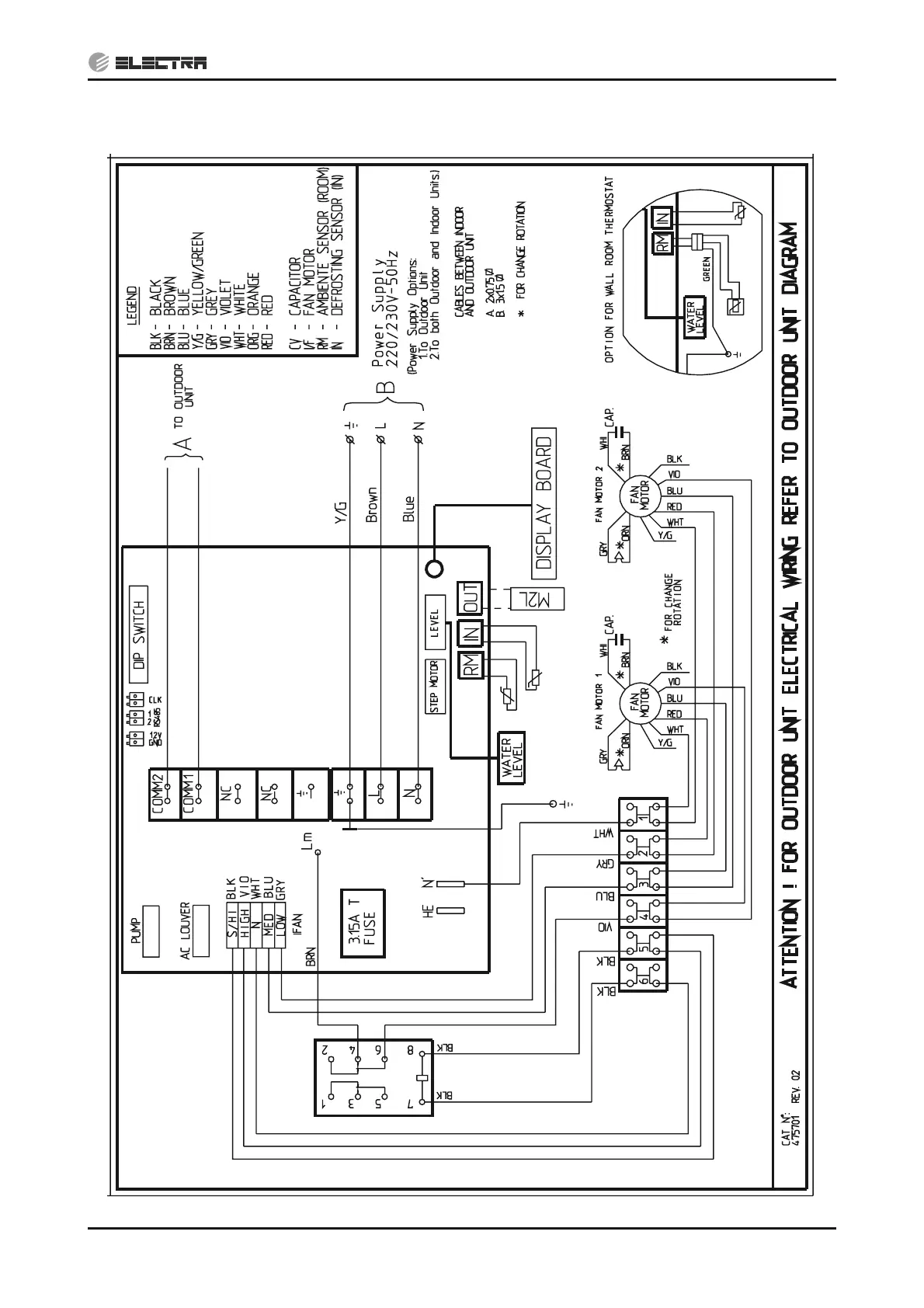
WIRING DIAGRAMS
SM OU12HP 2-E.2 GB
9.3 Indoor Units: CD 140 DCI
CONTENTS

Related product manuals