EasyManua.ls Logo

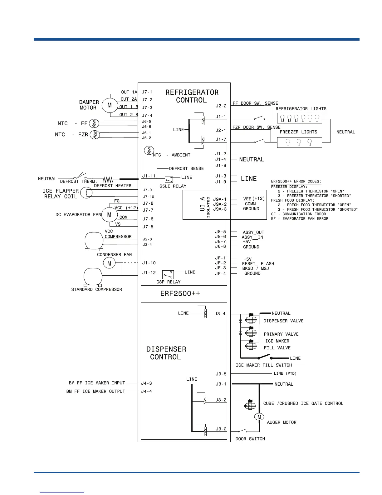
Electrolux 5995502399 - ERF2500++ Control Schematic; Section 9 Wiring Schematics

Electrolux 5995502399
173 pages
Print Icon
To Next Page IconTo Next Page
To Next Page IconTo Next Page
To Previous Page IconTo Previous Page
To Previous Page IconTo Previous Page
Loading...
9-1
Wiring Schematics
ERF2500++ Control Schematic

Table of Contents

Related product manuals