EasyManua.ls Logo

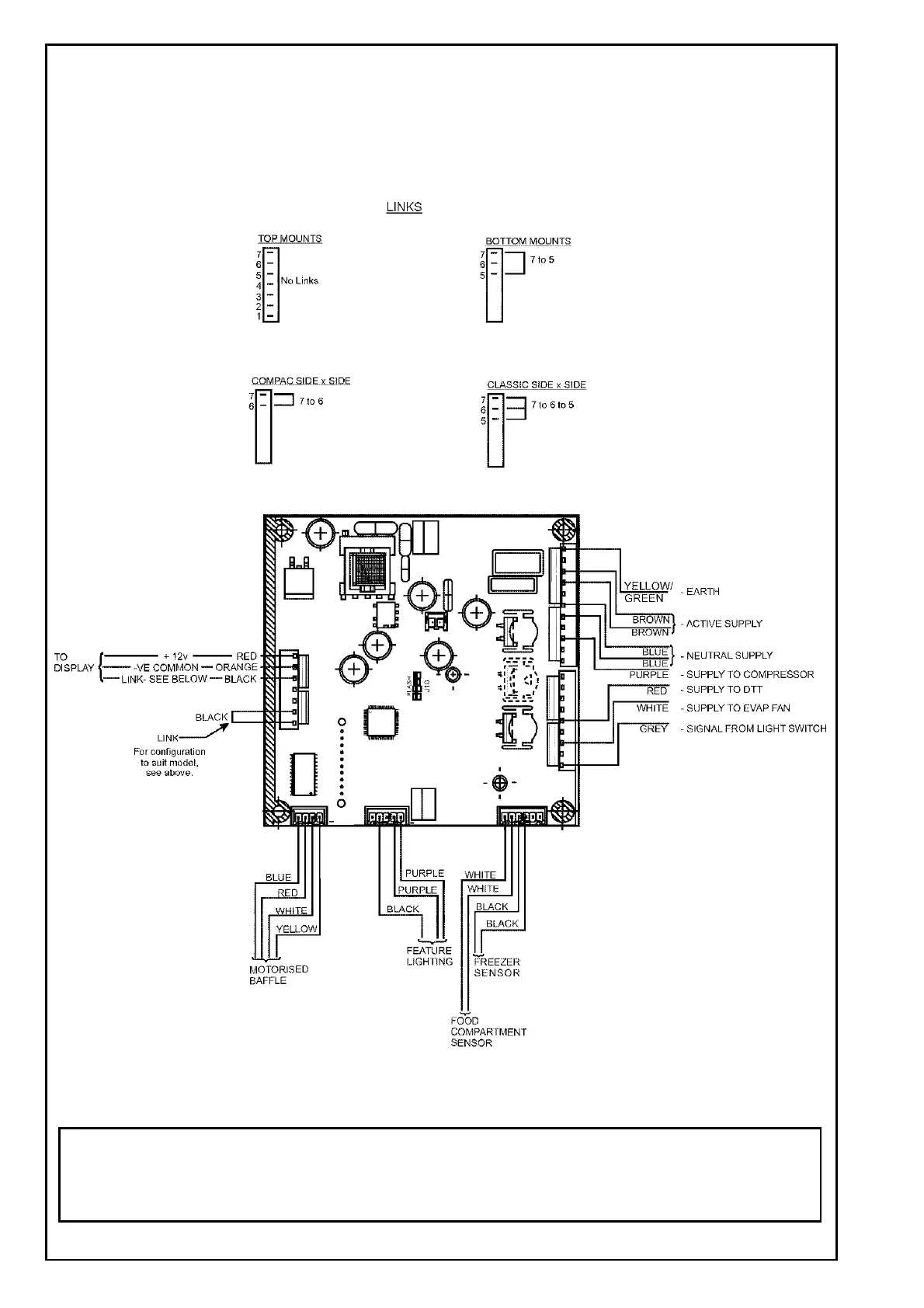
Electrolux B Series - Control Board Wiring Diagram

Electrolux B Series
62 pages
Print Icon
To Next Page IconTo Next Page
To Next Page IconTo Next Page
To Previous Page IconTo Previous Page
To Previous Page IconTo Previous Page
Loading...
Page 60 RESI219
IMPORTANT SAFETY NOTICE
This diagram has been prepared for use by electrically qualified service technicians. Electrolux cannot be
held responsible for the interpretation of its service publications nor for any injury or damage that may
occur in connection with their use.
MODELS: WSE6070PB *06 CONTROL BOARD
WSE6070SB *06 DIAGRAM R1098
WSE6070WB *06

Related product manuals