EasyManua.ls Logo

Electrolux Wascator W100 - Page 58

Electrolux Wascator W100
134 pages
Print Icon
To Next Page IconTo Next Page
To Next Page IconTo Next Page
To Previous Page IconTo Previous Page
To Previous Page IconTo Previous Page
Loading...
12. Function Sequences
Service
Manual
10 9003
12
Type
Edition
Page
B
14
6
7
1
S5
B11
43
39
K51
Y11
K51
D
16
17
b
a
A
a
a
12
7
16
a
C:17
32
34
31
6
5
1
2
X75:5
B:1
X75:6
A:3
A:1
A
X83:2
X183:9
A
X72
X172
60°
B:13
C
A:2
1457
1452
16
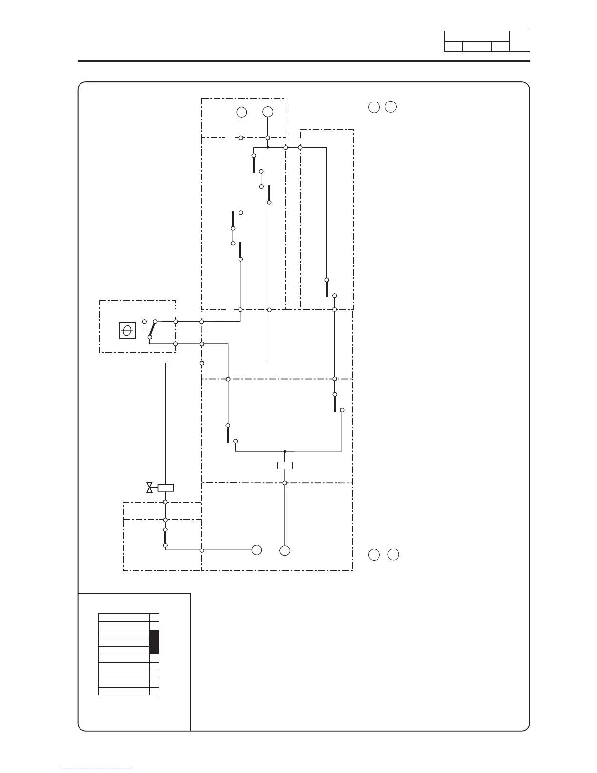
Programselector
A B = Power supply, see function
diagram ''Safety lock and power
supply''.
(1) Timer, row 14b
Fill directly
(2) Timer row 6a
Valve TMPF 1
(3) Timer row 7a
TM directly
(4) Timer row 1a
cool-down
(5) Program selector
row 16
(6) Thermostat
change-over contact at 60°
(7) Timer row 43
Rapid advance, Normal
(8) Timer row 39
Rapid advance, Cool-down
(9) K51 Coil for timer rapid advance
(10) Water valve
compartment 1 cold water
(11) Relay, timer rapid advance
C D = Power supply, see function
diagram ''Safety lock and power
supply''.
Program
selector
Thermostat
Timer
Parent card
Program selector
Parent card
Timer
Parent
card
Parent
card
15
Row no.
0
Normal 95°
Normal 60°
Normal 40°
Mild 30°
Wool 40°
Perm. press 40°
Perm. press 60°
Perm. press 95°

Table of Contents

Related product manuals