EasyManua.ls Logo

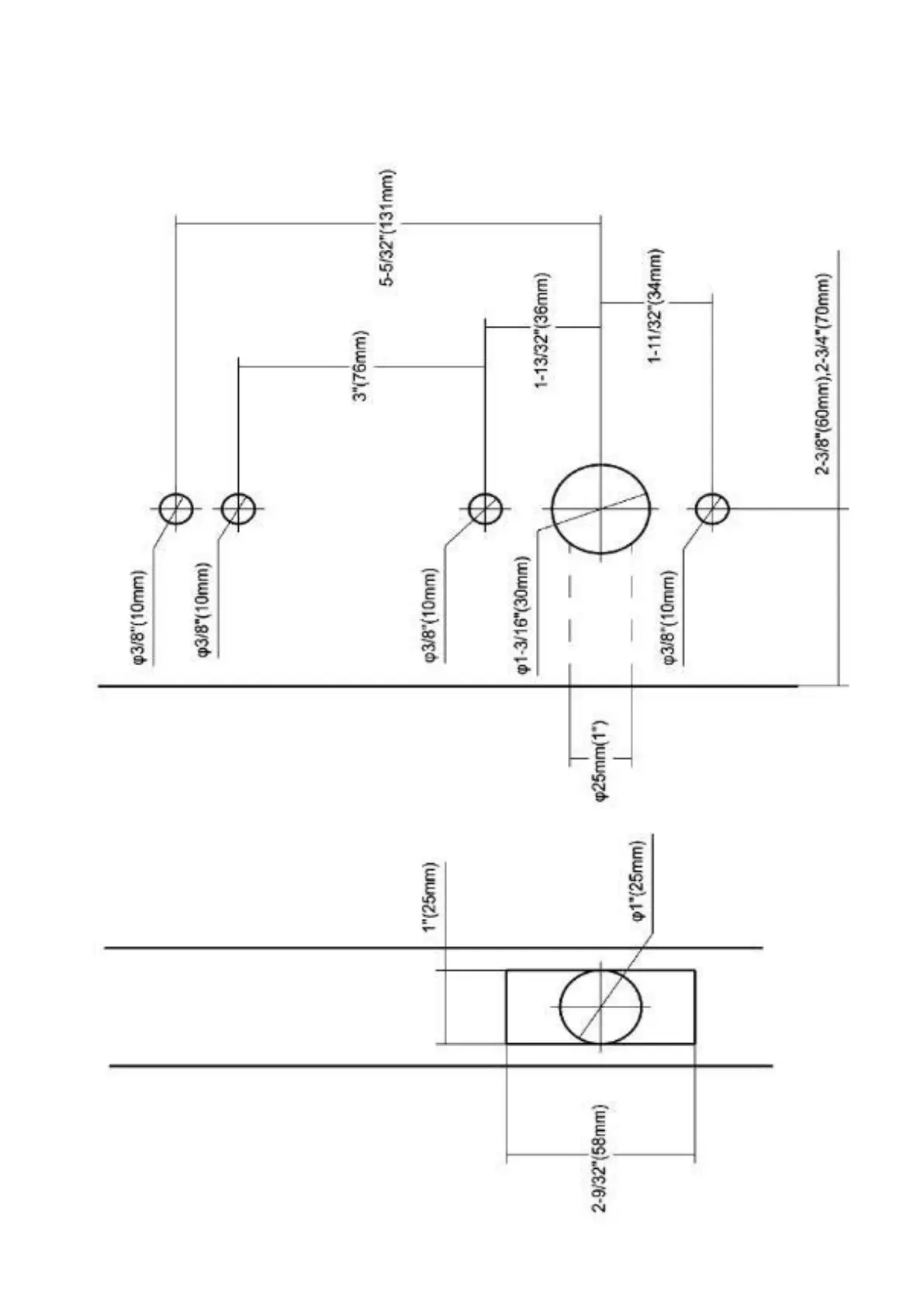
EleMake MKS Series - Drilling Holes Dimension

Default Icon
16 pages
Print Icon
To Next Page IconTo Next Page
To Next Page IconTo Next Page
To Previous Page IconTo Previous Page
To Previous Page IconTo Previous Page
Loading...
1.3Drilling Holes Dimension