EasyManua.ls Logo

Emerson MVS205 - Page 11

Emerson MVS205
56 pages
Print Icon
To Next Page IconTo Next Page
To Next Page IconTo Next Page
To Previous Page IconTo Previous Page
To Previous Page IconTo Previous Page
Loading...
Anleitung zur sicheren Verwendung – MVS205 Seite 3
Teil D301205X012
Leitungseinführung
Gleich am Eingang des Ventilgehäuses eine EEx d-
zertifizierte Abdichtung (z. B. Leitungseinführung
mit Vergussmasse) verwenden. Bei
Umgebungstemperaturen über 70 °C sollten die
Verkabelung und die Vergussmasse der
Leitungseinführungsabdichtung für mindestens
90 °C geeignet sein.
Als Blindstopfen für nicht verwendete Öffnungen
sollte entweder der vom Hersteller mitgelieferte
Leitungseinführungsstopfen oder ein für
druckfeste Kapselung zertifizierter und für die
Anwendungsbedingungen geeigneter und
ordnungsgemäß installierter Typ verwendet
werden.
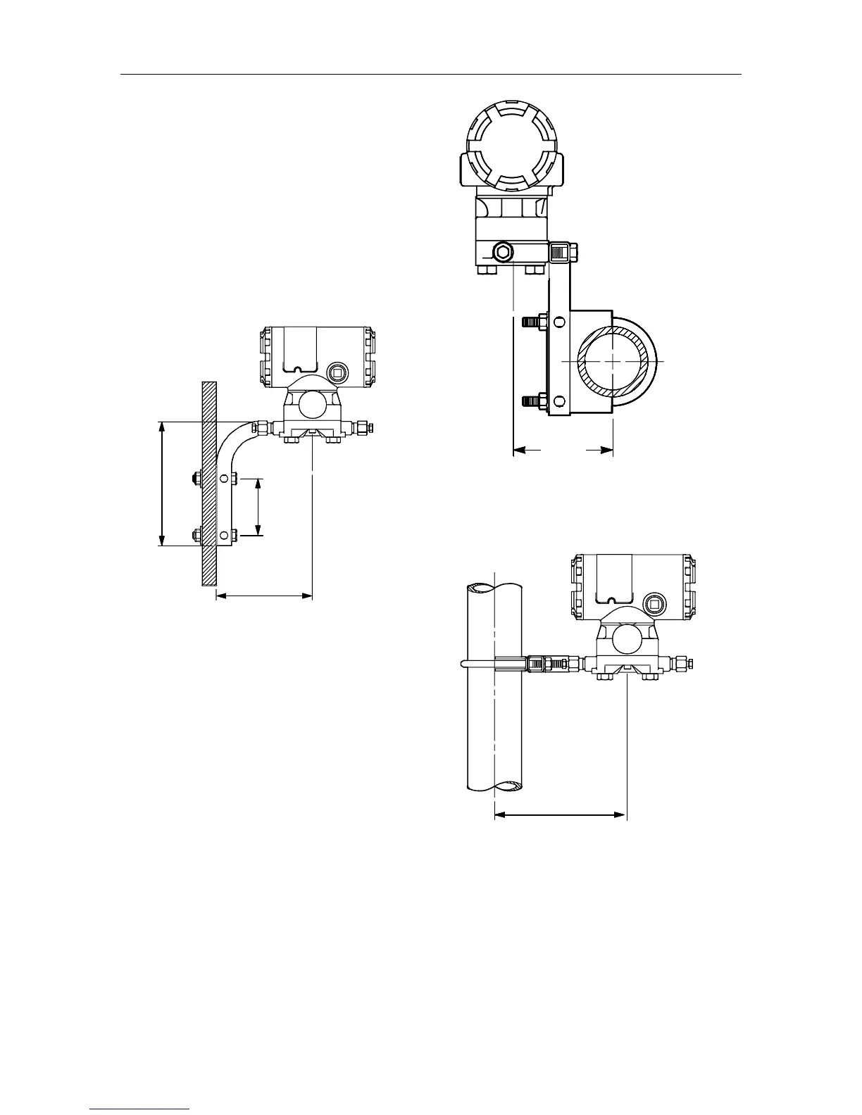
MVS205aa.dsf
71 mm
120 mm
156 mm
Abbildung 3. Wandmontage des MVS205
MVS205a.dsf
I
N
E
X
P
L
O
S
I
V
E
A
T
M
O
S
P
H
E
R
E
-
K
E
E
P
T
I
G
H
T
W
H
E
N
C
I
R
C
U
I
T
A
L
I
V
E
-
-
W
A
R
N
I
N
G
-
90 mm
Abbildung 4. Rohrmontage des MVS205
(horizontale Rohrleitung)
MVS205ac.dsf
159 mm
Abbildung 5. Rohrmontage des MVS205
(vertikale Rohrleitung)
6.
Für den Zugang zu den Abschlüssen im MVS-
Sensor die Deckelklemme am Sensor mit einem
3 mm-Innensechskantschlüssel abnehmen. Dann
die Endkappe des Sensors abschrauben.
Die Interface-Leiterplatte im MVS205-
Elektronikkopf ermöglicht dem MVS die
Verbindung (Stromversorgung) und
Kommunikation mit einem ROC oder FloBoss über
eine serielle EIA-485 (RS-485) 4-Leiter-Verbindung.

Other manuals for Emerson MVS205

Related product manuals