EasyManua.ls Logo

Emerson MVS205 - Page 41

Emerson MVS205
56 pages
Print Icon
To Next Page IconTo Next Page
To Next Page IconTo Next Page
To Previous Page IconTo Previous Page
To Previous Page IconTo Previous Page
Loading...
Istruzioni per l'uso sicuro - MVS205 Pagina 3
Part D301205X012
Collegamento del conduit
Fornire un dispositivo di tenuta certificato EEx d
(quale una tenuta del conduit con composto
indurente) immediatamente sull'entrata della
custodia della valvola. Per temperature ambiente
superiori a 70 °C, il cablaggio ed il composto
indurente nella tenuta del conduit devono essere
adatti per temperature di almeno 90 °C.
Gli elementi di chiusura delle aperture inutilizzate
devono essere il tappo del conduit fornito dal
produttore o un elemento certificato a prova di
fiamma, adatto alle condizioni d'uso e
correttamente installato.
MVS205aa.dsf
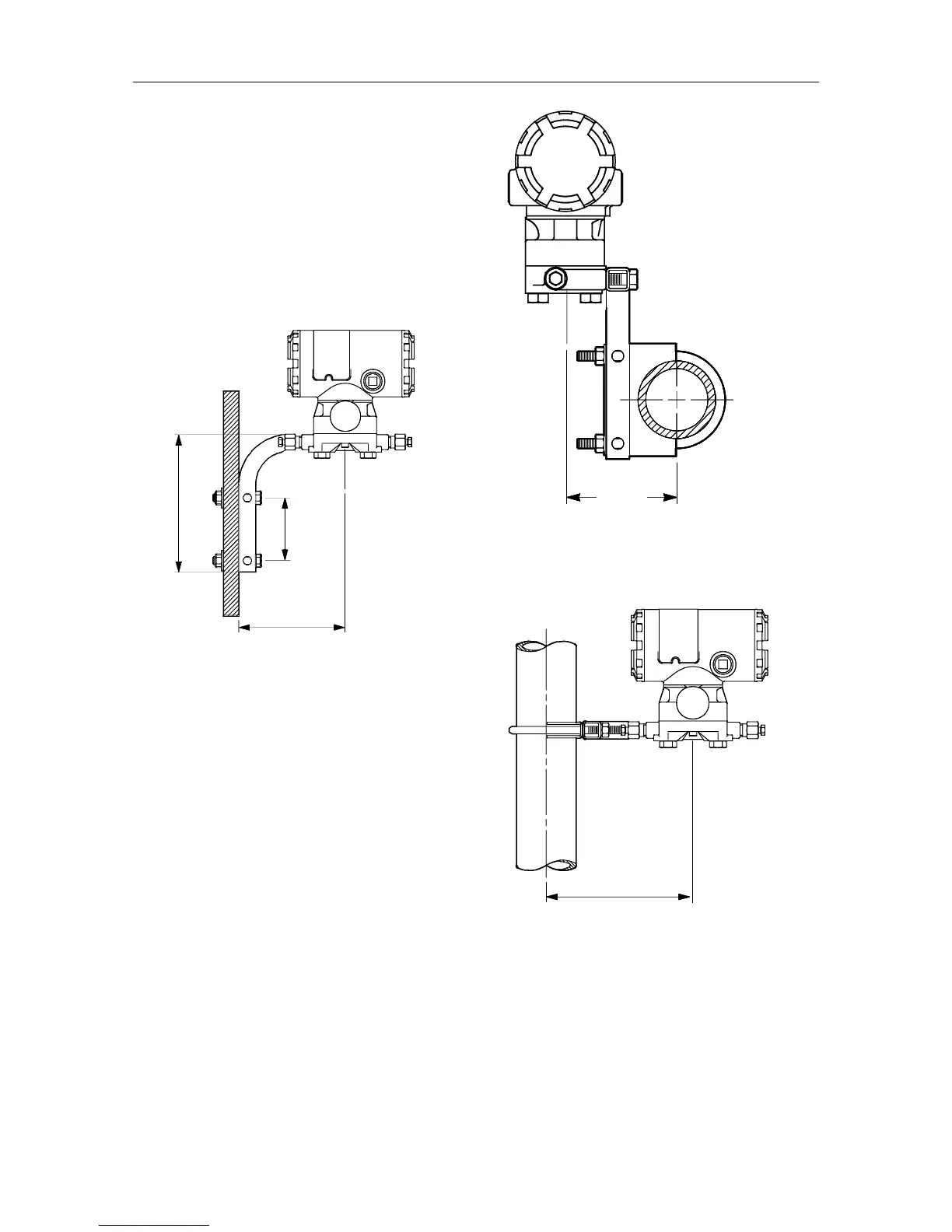
71 mm
120 mm
156 mm
Figura 3. Montaggio su pannello dell'MVS205
MVS205a.dsf
I
N
E
X
P
L
O
S
I
V
E
A
T
M
O
S
P
H
E
R
E
-
K
E
E
P
T
I
G
H
T
W
H
E
N
C
I
R
C
U
I
T
A
L
I
V
E
-
-
W
A
R
N
I
N
G
-
90 mm
Figura 4. Montaggio su palina dell'MVS205
(palina orizzontale)
MVS205ac.dsf
159 mm
Figura 5. Montaggio su palina dell'MVS205
(palina verticale)
6. Per accedere alle terminazioni nel sensore MVS,
utili zzare una chiave a brugola da 3 mm per
rimuovere il morsetto del coperchio sul sensore.
Quindi svitare il tappo di chiusura del sensore.

Other manuals for Emerson MVS205

Related product manuals