EasyManua.ls Logo

Emerson MVS205 - Page 47

Emerson MVS205
56 pages
Print Icon
To Next Page IconTo Next Page
To Next Page IconTo Next Page
To Previous Page IconTo Previous Page
To Previous Page IconTo Previous Page
Loading...
Instructies voor veilig gebruik — MVS205 Pagina 3
Onderdeel D301205X01
2
Doorvoeraansluiting
Zorg voor een afdichting met de certificatie EEx d
(bijv. een doorvoerafsluiting met een uithardende
stof) direct naast de ingang van de klepbehuizing.
Bij omgevingstemperaturen van meer dan 70 °C
moeten de bedrading en uithardende stof in de
doorvoerafsluiting geschikt zijn voor ten minste
90 °C.
De blindstoppen in ongebruikte openingen
moeten de doorvoerstop van de fabrikant zijn of
van een gecertificeerd drukvast type dat geschikt
is voor de gebruiksomstandigheden en correct is
geïnstalleerd.
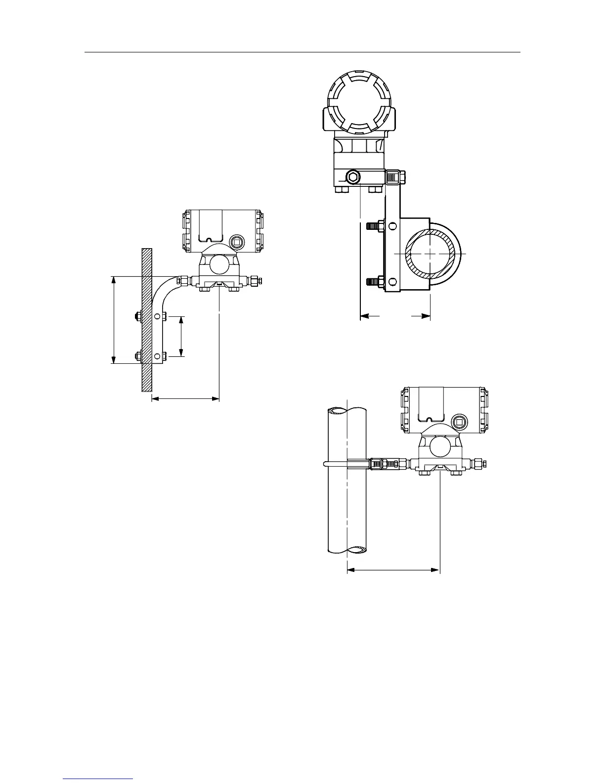
MVS205aa.dsf
71 mm
120 mm
156 mm
Afbeelding 3. Paneelmontage van de MVS205
MVS205a.dsf
I
N
E
X
P
L
O
S
I
V
E
A
T
M
O
S
P
H
E
R
E
-
K
E
E
P
T
I
G
H
T
W
H
E
N
C
I
R
C
U
I
T
A
L
I
V
E
-
-
W
A
R
N
I
N
G
-
90 mm
Afbeelding 4. Leidingmontage van de MVS205
(horizontale leiding)
MVS205ac.dsf
159 mm
Afbeelding 5. Leidingmontage van de MVS205
(verticale leiding)
6.
Om toegang te verkrijgen tot de aansluitklemmen
in de MVS-sensor verwijdert u de kapklem van de
sensor met een inbussleutel van 3 mm. Schroef
daarna de eindkap van de sensor los.
Via de interface-printplaat in de MVS205-
elektronicakop kan de MVS worden verbonden
met (gevoed worden via) en communiceren met

Other manuals for Emerson MVS205

Related product manuals