EasyManua.ls Logo

Emerson MVS205 - Conduit Connection

Emerson MVS205
56 pages
Print Icon
To Next Page IconTo Next Page
To Next Page IconTo Next Page
To Previous Page IconTo Previous Page
To Previous Page IconTo Previous Page
Loading...
Safe Use Instructions — MVS205 Page 3
Part D301205X012
Conduit Connection
Provide an EEx d-certified sealing device
(such as a conduit seal with setting
compound) immediately to the entrance of
the valve housing. For ambient
temperatures over 70°C, the wiring and
setting compound in the conduit seal shall
be suitable for at least 90°C.
The blanking elements of unused apertures
shall be either the conduit plug supplied by
the manufacturer or a certified flame-proof
type, suitable for the conditions of use and
correctly installed.
MVS205aa.dsf
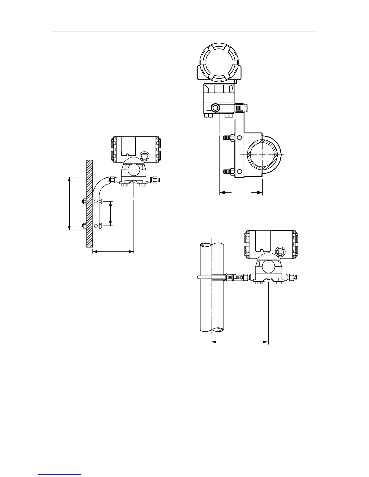
71 mm
120 mm
156 mm
Figure 3. MVS205 Panel Mounting
MVS205a.dsf
I
N
E
X
P
L
O
S
I
V
E
A
T
M
O
S
P
H
E
R
E
-
K
E
E
P
T
I
G
H
T
W
H
E
N
C
I
R
C
U
I
T
A
L
I
V
E
-
-
W
A
R
N
I
N
G
-
90 mm
Figure 4. MVS205 Pipe Mounting (Horizontal Pipe)
MVS205ac.dsf
159 mm
Figure 5. MVS205 Pipe Mounting (Vertical Pipe)
6. To gain access to the terminations in the MVS
sensor, use a 3 mm Allen hex wrench to
remove the cover clamp on the sensor. Then
unscrew the end cap of the sensor.
The interface circuit board in the MVS205
electronics head allows the MVS to connect to
(be powered from) and communicate with a

Other manuals for Emerson MVS205

Related product manuals