EasyManua.ls Logo

Emerson MVS205 - Page 53

Emerson MVS205
56 pages
Print Icon
To Next Page IconTo Next Page
To Next Page IconTo Next Page
To Previous Page IconTo Previous Page
To Previous Page IconTo Previous Page
Loading...
Instrucciones de uso seguro: MVS205 Página 3
Parte D301205X012
Conexión de conducto
Proporcione un dispositivo de sellado con la
certificación d EEx (como un sello de conducto
con compuesto endurecedor) directamente
en la entrada de la carcasa de la válvula. Para
temperaturas ambiente superiores a los 70 °C,
el cableado y el compuesto endurecedor en el
sello del conducto deben ser adecuados para
los 90 °C, como mínimo.
Los elementos de protección de las aperturas no
usadas pueden ser el tapón del conducto provisto
por el fabricante o un tipo a prueba de llamas
certificado, que sea adecuado para las condiciones
de uso y está instalado correctamente.
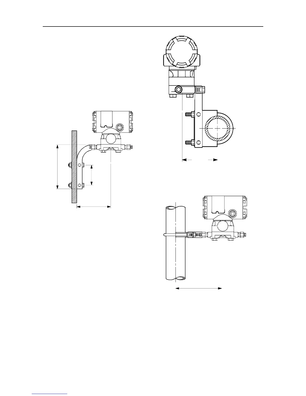
MVS205aa.dsf
71 mm
120 mm
156 mm
Figura 3. Montaje del panel de MVS205
MVS205a.dsf
I
N
E
X
P
L
O
S
I
V
E
A
T
M
O
S
P
H
E
R
E
-
K
E
E
P
T
I
G
H
T
W
H
E
N
C
I
R
C
U
I
T
A
L
I
V
E
-
-
W
A
R
N
I
N
G
-
90 mm
Figura 4. Montaje de la tubería de MVS205
(tubería horizontal)
MVS205ac.dsf
159 mm
Figura 5. Montaje de la tubería de MVS205
(tubería vertical)
6. Para obtener acceso a las terminaciones en el
sensor MVS, use una llave hexagonal Allen de
3 mm para quitar el sujetador de la cubierta en
el sensor. Luego, destornille la tapa del sensor.

Other manuals for Emerson MVS205

Related product manuals