EasyManua.ls Logo

Emerson SP1401 - Size 4 and 5 External EMC Filter

Emerson SP1401
220 pages
Print Icon
To Next Page IconTo Next Page
To Next Page IconTo Next Page
To Previous Page IconTo Previous Page
To Previous Page IconTo Previous Page
Loading...
Safety
Information
Introduction
Product
information
System
design
Mechanical
installation
Electrical
installation
Getting
started
Optimisation Parameters
Technical
data
Component
sizing
Diagnostics
Unidrive SP Regen Installation Guide 59
Issue Number: 2 www.controltechniques.com
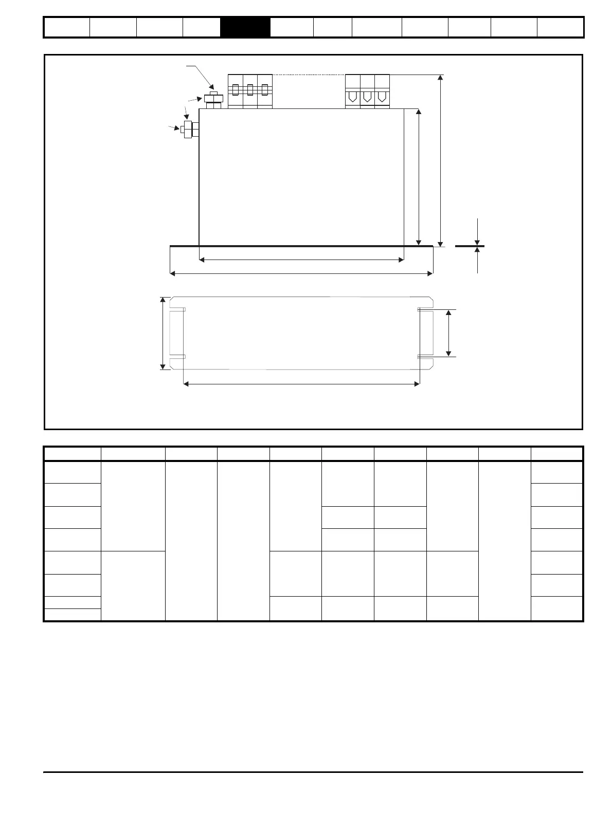
Figure 5-24 Size 4 and 5 external EMC filter
F
A
H
C
W
V
Schaffner
Epcos
Z
Z
D
B
E
V: Ground stud: M10
Z: Bookcase mounting slots 6.5mm (0.256in wide)
CT part no.ManufacturerABCDEFHW
4200-6406
Schaffner
260 mm
(10.236 in)
275 mm
(10.827 in)
170 mm
(6.693 in)
100 mm
(3.937 in)
65 mm
(2.559 in)
1.5 mm
(0.059in)
300 mm
(11.811 in)
225 mm
(8.858 in)
4200-6408
208 mm
(8.189 in)
4200-6503
120 mm
(4.724 in)
85 mm
(3.346 in)
249 mm
(9.803 in)
4200-6504
100 mm
(3.937 in)
65 mm
(2.559 in)
225 mm
(8.858 in)
4200-6405
Epcos
150 mm
(5.906 in)
90 mm
(3.543in)
65 mm
(2.559 in)
2 mm
(0.079 in)
207 mm
(8.150 in)
4200-6407
205 mm
(8.071 in)
4200-6501
170 mm
(6.693 in)
120 mm
(4.724 in)
85 mm
(3.346 in)
1 mm
(0.039 in)
249 mm
(9.803 in)
4200-6502

Table of Contents

Related product manuals