EasyManua.ls Logo

Emerson SP1405 - 6.5.2 General Requirements for EMC: Ground Connections

Emerson SP1405
220 pages
Print Icon
To Next Page IconTo Next Page
To Next Page IconTo Next Page
To Previous Page IconTo Previous Page
To Previous Page IconTo Previous Page
Loading...
Safety
Information
Introduction
Product
information
System
design
Mechanical
installation
Electrical
installation
Getting
started
Optimisation Parameters
Tec h nic a l
data
Component
sizing
Diagnostics
Unidrive SP Regen Installation Guide 79
Issue Number: 2 www.controltechniques.com
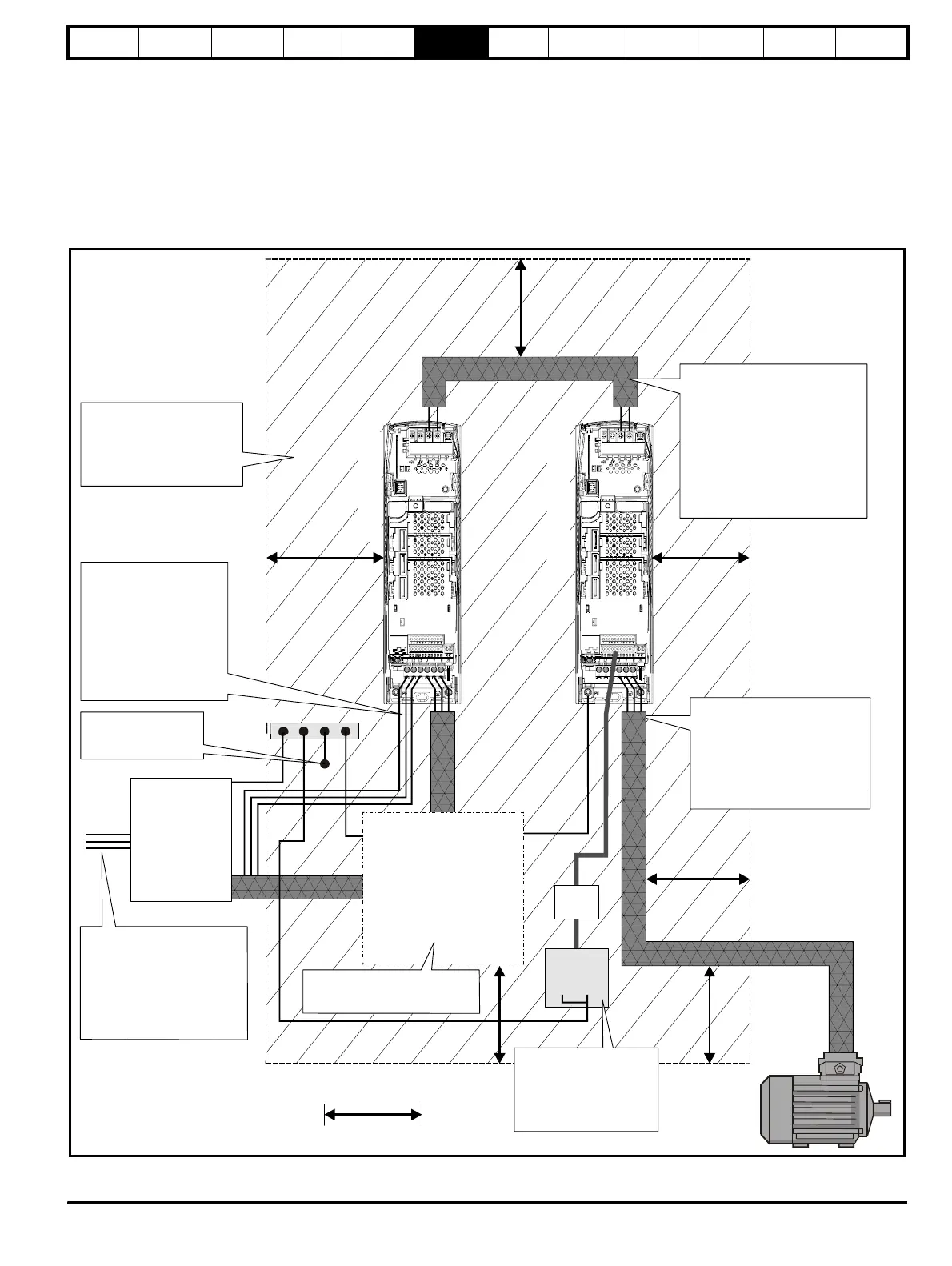
6.5.2 General requirements for EMC
Ground (earth) connections
The grounding arrangements should be in accordance with Figure 6-14,
which shows both drives mounted on a back-plate with or without an
additional enclosure.
Figure 6-14 shows how to manage EMC when using a shielded motor
cable, and indicates the clearances which should be observed around
the drive and related ‘noisy’ power cables by all sensitive control signals
/ equipment.
300mm
(12in)
±
DC bus connections
Metal backplate
safety bonded to
power ground busbar
Grounding
bar
Signal
cables
Use four core cable to
connect the motor to the drive.
The ground conductor in the
motor cable must be connected
directly to the ground terminal of
the drive and motor.
It must not be connected directly
to the power ground busbar.
The voltage present in the
wiring between the Regen
drive and regen inductor
is a source of radio
emission. These cables
should be kept as short as
possible. (I.e. The regen
inductor mounted as
close as possible to the
Regen drive.)
The DC connection between the
Regen and motoring drive carries
common mode high frequency
voltage comparable with the
output voltage from a standard
drive.
Screened cable should be used
with the screen connection
connected to a single power
ground busbar or low impedance
ground terminal inside the cubicle.
EMC filter
Regen
components
External
controller
0V
PE
Screen and ground connections
should be followed as shown in
.Electrical Installation
Regen drive
Motoring drive
The incoming supply ground,
PE, should be connected to a
single power ground bus bar
or low impedance ground
terminal inside the cubicle.
This should be used as a
common 'clean' ground for all
components inside the cubicle.
If the control circuit 0V
is to be grounded, this
should be done at the
system controller only to
avoid injecting noise
currents into the 0V circuit
Do not place sensitive
(unscreened) signal circuits
in a zone extending
300mm (12”) all around the
drive, motor cable, input
cable from EMC filter
Figure 6-14 General EMC enclosure layout showing earth / ground connections

Table of Contents

Related product manuals