EasyManua.ls Logo

ENCON Therma-Flow PLUS - Page 34

ENCON Therma-Flow PLUS
56 pages
Print Icon
To Next Page IconTo Next Page
To Next Page IconTo Next Page
To Previous Page IconTo Previous Page
To Previous Page IconTo Previous Page
Loading...
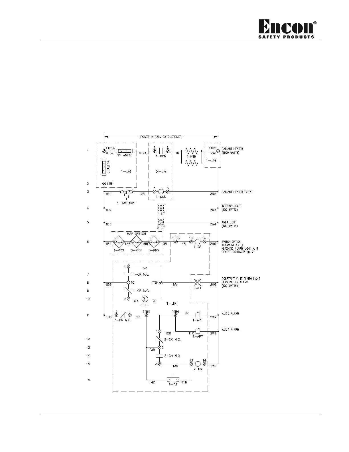
4 MAINTENANCE AND REPAIR
4-15
These are the alarm components:
Magnetic Activated Proximity (MAP
®
) Switch or
Flow Switch
Alarm Silence Button (comes with a piezo annunciator audible alarm)
Alarm Flasher
To stop the alarms, you need to close the shower, eyewash and drench hose
valves. However, units equipped with a piezo annunciator audible alarm has an
alarm silence button to stop audible alarm (but not visual alarms).
Figure 4-7. Wiring Diagram – Piezo Annunciator Audible Alarm with Reset Button
.
.