EasyManua.ls Logo

Enerzone EB00005 - Page 36

Enerzone EB00005
60 pages
Print Icon
To Next Page IconTo Next Page
To Next Page IconTo Next Page
To Previous Page IconTo Previous Page
To Previous Page IconTo Previous Page
Loading...
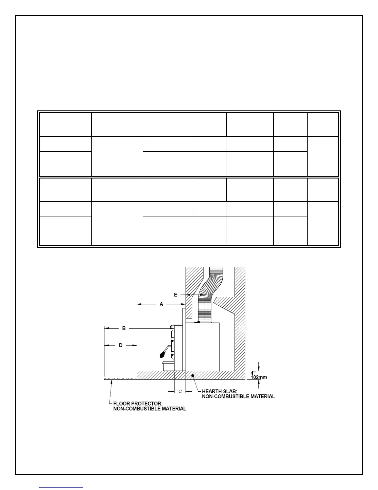
36 Solution 1.8 Insert Installation and Operation Manual
When installed as an extended insert, the front edge of the air jacket will be installed flush with the
fireplace facing. Otherwise the unit can be moved back as much as
1 11/16" (43mm) or any position in
between. The position chosen will depend on your own preference for most installations, your current
configuration, the compliance with the preceding installation instructions and compliance with the
building code requirements. To determine the minimum and maximum projection of the insert, refer
to table Data for floor protection calculation.
Data for Floor Protection Calculation
MAXIMUM
EXTENDED
A
B
(Note 1)
C D E
AIR
JACKET
INCHES
Dimension of
the hearth
extension
CAN: 18"
USA: 16"
4 11/16" D = B - (A - C) 6 1/4"
Flush
with
fireplace
facing
MILLIMETRES
CAN: 457 mm
USA: 406 mm
119 mm D = B - (A - C) 158 mm
MINIMUM
EXTENDED
A
B
(Note 1)
C D E
AIR
JACKET
INCHES
Dimension of
the hearth
extension
CAN: 18"
USA: 16"
3" D = B - (A - C) 7 15/16"
Back
from
fireplace
facing
1 11/16"
(43mm)
MILLIMETRES
CAN: 457 mm
USA: 406 mm
76 mm D = B - (A - C) 201 mm

Table of Contents