EasyManua.ls Logo

Entron EN1000 series

Entron EN1000 series
61 pages
To Next Page IconTo Next Page
To Next Page IconTo Next Page
To Previous Page IconTo Previous Page
To Previous Page IconTo Previous Page
Loading...
Page 18
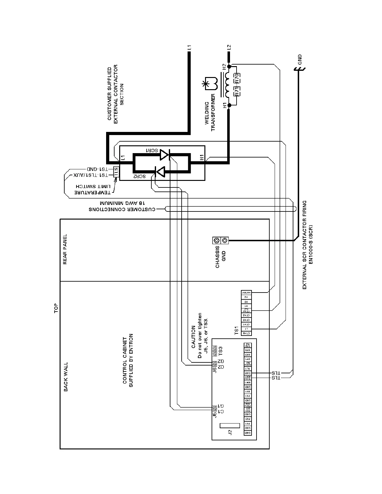
+22.83(;7(51$/6&5&217$&725
SEE CUSTOMER WIRING DIAGRAM 421189 R/T CABINET OR 421180 S CABINET

Other manuals for Entron EN1000 series

Related product manuals