EasyManua.ls Logo

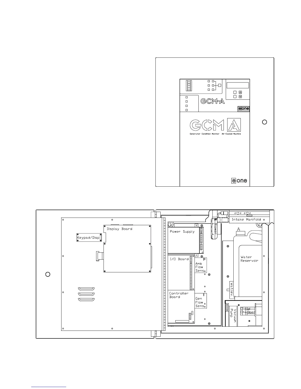
EONE GCM-X - Figure 1 - System Overview

Default Icon
58 pages
Print Icon
To Next Page IconTo Next Page
To Next Page IconTo Next Page
To Previous Page IconTo Previous Page
To Previous Page IconTo Previous Page
Loading...
39
GA0383P02 Rev. C
Figure 1 - System Overview

Table of Contents