EasyManua.ls Logo

Ericsson BDV BS 101 01 - Page 131

Ericsson BDV BS 101 01
225 pages
Print Icon
To Next Page IconTo Next Page
To Next Page IconTo Next Page
To Previous Page IconTo Previous Page
To Previous Page IconTo Previous Page
Loading...
38(57)
Datum/Date
Rev
Dokumentnr/Documentnr
Uppgjord/Prepared
Dokansv/Godkänd - Doc respons/Approved Kontr/Checked
Tillhör/Referens-File/Reference
1999-07-15
V
1531-BDV 113 08 Uen
INSTALLATION INSTRUCTION
Faktaansvarig - Subject responsible
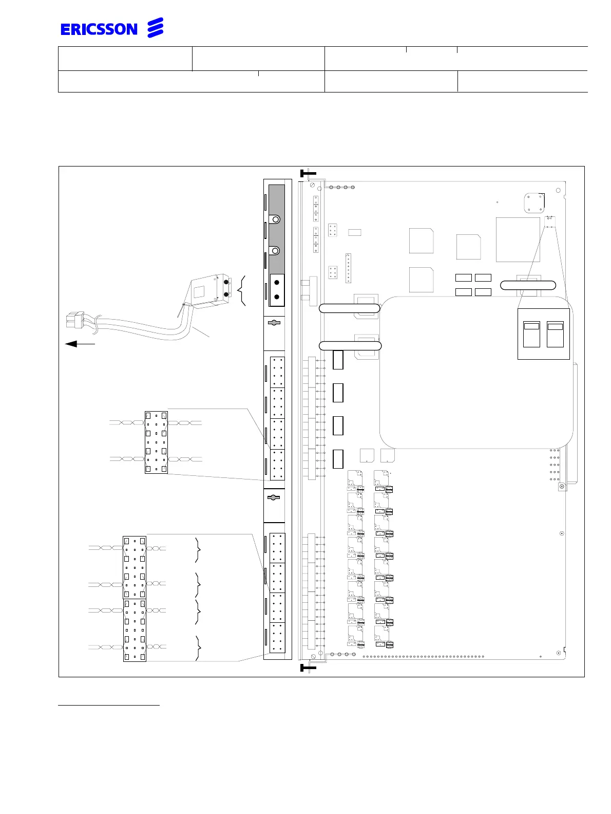
6.6 Board IC-LU (ROF 157 5129)
Revision R2A and higher
Note: Use only the cable (TSR BS 902 0001/__ or equivalent) for the wiring to the MDF.
External power input: This cable is used if the current of all Base Stations connected to the IC-LU exceeds 1.5A.
This cable connects either to another power supply in another cabinet or to the same cabinet’s power supply. The
current fed by this cable must also be considered in the power calculation of the BML 351 048.
Overvoltage Protection
All lines leading outside the building to Base Stations must be fitted with 90V gas-filled surge arresters between
every wire to ground.
ROF1575129/1
R1A
IC-SLU
BS2 9627
Express Power feeding to base stations
Red
board error
Cell Link Unit
Red
board error and/or
External power input
V1
(+)
V0
(-)
via front connector (to enable
Serial communication to base stations
1
ON
1 2
set switch 1 and 2 to OFF)
02
04
06
08
AC
SC0
SC0
SC1
To BS 4
10
12
14
16
SC0
SC0
02
04
06
08
AC
EPP (V0
(-)
)
To BS 1
To BS 2
to power supply
BML 351 013
RYS NB 101 20
RYS NB 101 19
EPP (V1
(+)
)
EPP (V0
(-)
)
EPP (V1
(+)
)
SC1
To BS 3
SC1
To BS 2
SC1
To BS 1
TSR BS 101 12/1500
Stations via the back plane. Set
switch 1and 2 to OFF, if higher cur-
rents are needed. Connect exter-
nal power via the front connector.
Speech
Processing
Unit
RYS 102 554/1
EXT.
INT.
Set switch 1 and 2 to ON
to connect 48V feeding
from the backplane. The
IC-LU board can supply
up to 1.5A to the Base
Base Station not initialized

Table of Contents