EasyManua.ls Logo

ermaf GP 120 - Burner control unit BCU connection diagram; Connecting the room thermostat for Heating and Controlled air flow mode

ermaf GP 120
18 pages
Print Icon
To Next Page IconTo Next Page
To Next Page IconTo Next Page
To Previous Page IconTo Previous Page
To Previous Page IconTo Previous Page
Loading...
GB-4
D
GB
F
NL
I
E
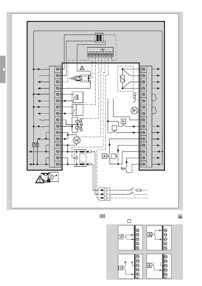
Burner control unit BCU connection diagram
12345678910111213141516
17 18 19 20 21 22 23 24 25 26 27 28 29 30 31 32
PE
N (L2)
L1 (L1)
F1
F2
V2V1
WF
24 V
0 V
ϑ
ϑ
IZ
PE
BCU 300:THP-G
DG
max. 2 A,
253 V
max. 5 A,
253 V
N
F1 T 8A H
F2 T 3,15A H
IEC 60127-2/5
N
AC/DC
ϑ
35453625
In order to ensure post-cooling, the heater con-
stantly requires 230 V AC.
Connecting the room thermostat for “Heating”
and “Controlled air flow” mode
Use a room thermostat with a hysteresis of ±1°C.
It switches on if the room temperature is 1°C
less than the set temperature and switches off
again once the room temperature is 1°C more
than the set temperature.
Do not directly connect the room thermostat to
terminals1 and3.
5 Connect the terminals for Controlled air flow
ϑ
and Heating
ϑ
.
31 3229 3028
31 3229 3028
0
26 27
28
24 2523
0
26 27
28
24 2523
230 V ~
230 V ~
+24 V =/~
+24 V =/~
+24 V =/~
+24 V =/~

Related product manuals