EasyManua.ls Logo

ESAB A2 Multitrac - Automatic Welding Equipment A2 TG J1 4 WD; Mig;Mag)

ESAB A2 Multitrac
60 pages
Print Icon
To Next Page IconTo Next Page
To Next Page IconTo Next Page
To Previous Page IconTo Previous Page
To Previous Page IconTo Previous Page
Loading...
3 INSTALLATION
0449 165 160
- 16 -
© ESAB AB 2020
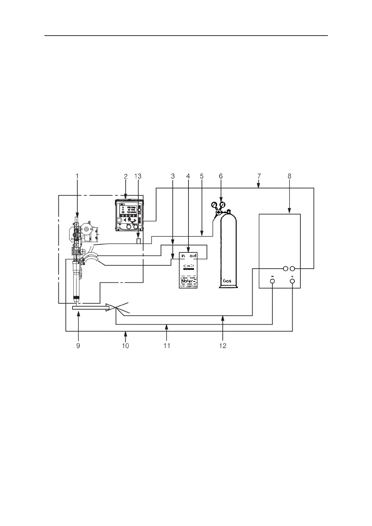
3.7.4 Automatic welding equipment A2TGJ14WD (Gas metal arc welding,
MIG/MAG)
1. Connect the control cable (7) between the welding power source (8) and the PEK (2).
2. Connect the return cable (11) between the welding power source (8) and the work
piece (9).
3. Connect the welding cable (10) between the welding power source (8) and the
automatic welding equipment (1).
4. Connect the gas hose (5) between the reduction valve (6) and the gas valve on the
automatic welding equipment (13).
5. Connect the hoses for cooling water (3) between the cooling unit (4) and the
automatic welding equipment (1).
6. Connect the measuring cable (12) between the welding power source (8) and the
work piece (9).
1. Automatic welding equipment 5. Control cable
2. PEK 6. Return cable
3. Power source 7. Welding cable
4. Work piece 8. Measurement cable

Table of Contents

Other manuals for ESAB A2 Multitrac

Related product manuals