EasyManua.ls Logo

ESAB A6 - Page 76

ESAB A6
78 pages
Print Icon
To Next Page IconTo Next Page
To Next Page IconTo Next Page
To Previous Page IconTo Previous Page
To Previous Page IconTo Previous Page
Loading...
- 76 -
#&&*#
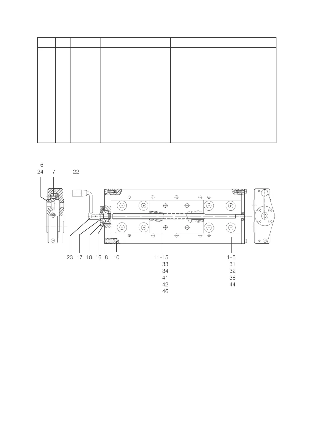
Item
Qty Orderingno. Denomination Remarks
0154465881 Slide, manually operated
2 1 0154464002 Slide frame
6 1 0154463880 Carriage with slide rails
7 6 0190509485 Stop screw M10x10
8 1 0154458001 End piece
10 2 0211102957 Roll pin D5x20
12 1 0154461002 Lead screw
16 1 0190531201 Ball bearing SKF 3201
17 1 0154456001 Lock nut
18 1 0154457001 Ball bearing cap
22 1 0334537001 Handle crank
23 1 0211102938 Roll pin D3x20

Related product manuals