EasyManua.ls Logo

ESAB ARC400i - Page 12

ESAB ARC400i
15 pages
Print Icon
To Next Page IconTo Next Page
To Next Page IconTo Next Page
To Previous Page IconTo Previous Page
To Previous Page IconTo Previous Page
Loading...
12 | P a g e
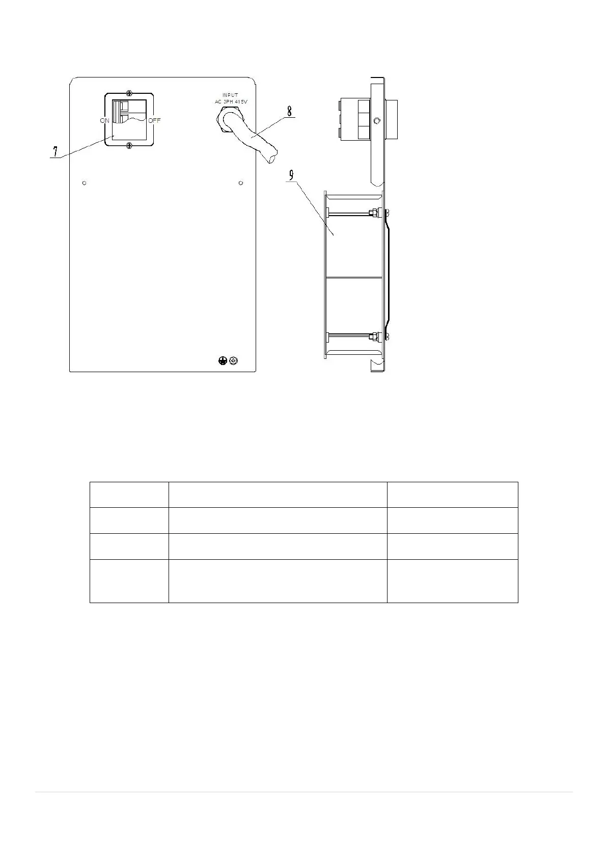
Serial No.
Name of component
Material code
7
Miniature circuit breaker
0011501003
8
Input cable
0030501596
9
Fan
0011702012

Related product manuals