EasyManua.ls Logo

ESAB ESP-400C - Page 108

ESAB ESP-400C
120 pages
Print Icon
To Next Page IconTo Next Page
To Next Page IconTo Next Page
To Previous Page IconTo Previous Page
To Previous Page IconTo Previous Page
Loading...
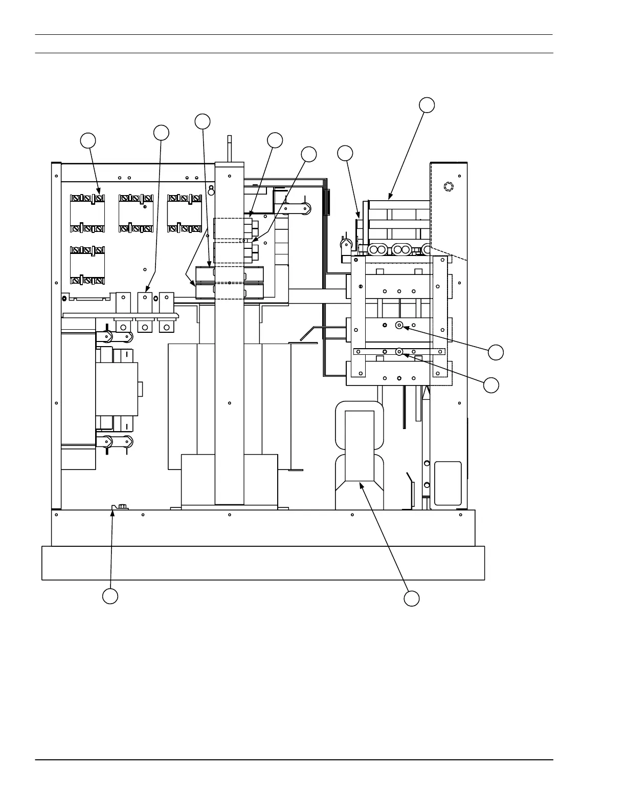
SECTION 7 Replacement Parts
ESP 400C Plasma Power Source
7-8
7.6 Left Side View
1
3
4
5
6
5
8
7
9
10
11
x4

Table of Contents

Related product manuals