EasyManua.ls Logo

Esco Lexicon - Shelves Installation

Esco Lexicon
38 pages
Print Icon
To Next Page IconTo Next Page
To Next Page IconTo Next Page
To Previous Page IconTo Previous Page
To Previous Page IconTo Previous Page
Loading...
7
Ultra-Low Temperature Freezer
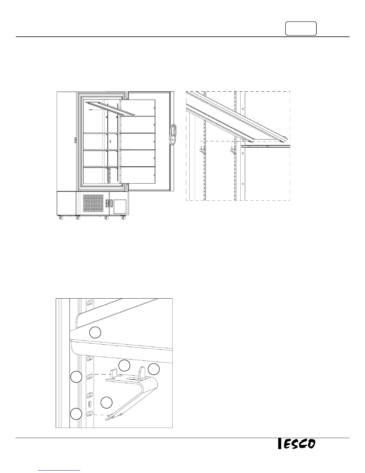
2.2.2 Shelves Installation
To change the position of the shelves, remove and re-install the pilaster clips (front and back) at desired shelf
level.
1. Open main door
2. Open all inner doors
3. Rotate shelf 45
o
vertically
4. Slide the shelf into the freezer chamber – on
top of the pilasters
5. Ensure the pilaster clips go through the holes
on the shelf
1. Put the first hook (1) into the pilaster hole
(4a)
2. Press upwards, then put the second hook
(2) into the pilaster hole (4b)
3. Install the shelf by aligning the third hook
(3) with the shelf hole - hole located
underneath the shelf (5)
1
2
3
4a
5
4b