EasyManua.ls Logo

ETQ DG6LE - Basic Operating Parameters and Conditions; Generator Dimensions and Visual Overview

ETQ DG6LE
34 pages
Print Icon
To Next Page IconTo Next Page
To Next Page IconTo Next Page
To Previous Page IconTo Previous Page
To Previous Page IconTo Previous Page
Loading...
EASTERN TOOLS & EQUIPMENT INC Tele: (888)908-6200 Web Site: easterntools.com
2
1-2 Basic operating parameters
1-2.1 Under the given conditions, the generator will output the specified power in the table listed below.
Table 1.
Height above sea level (ft)
Ambient temperature ()
RH
0
+60 (+20 )
60%
<3280.8 (<1000 m)
41~104 (5-40 )
90%
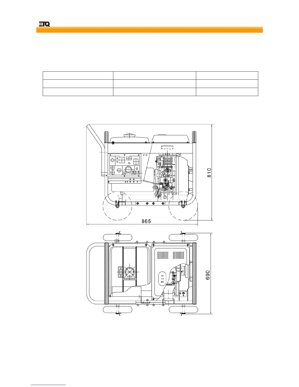
1-3 General dimensions and overview of the generators

Related product manuals