EasyManua.ls Logo

Evolution Aqua Nexus Eazy 200 - Gravity Fed Installation

Evolution Aqua Nexus Eazy 200
20 pages
Print Icon
To Next Page IconTo Next Page
To Next Page IconTo Next Page
To Previous Page IconTo Previous Page
To Previous Page IconTo Previous Page
Loading...
GRAVITY FED INSTALLATION
-4-
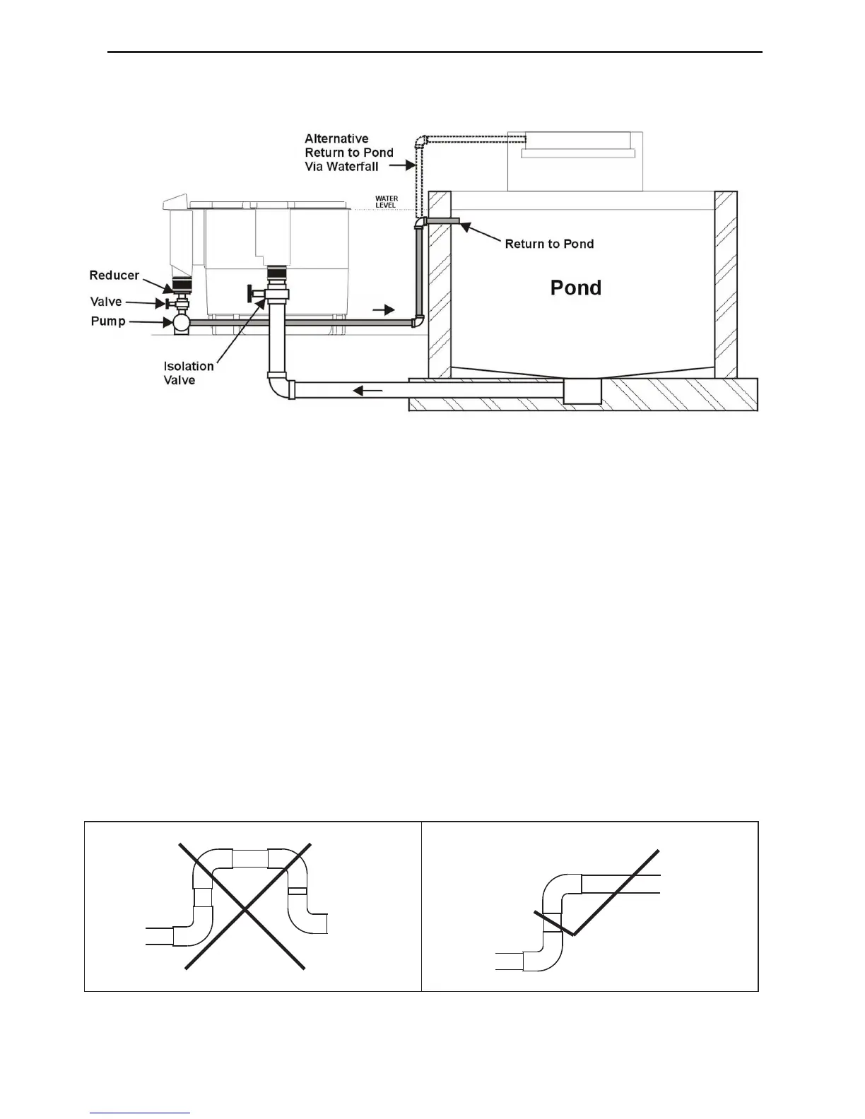
A gravity fed system is where the water level in the Nexus is at the same height as
the water level in the pond, therefore the top of the Nexus should approximately
be at the same height as the top of the pond as shown in Figure 3.
The water on a Gravity fed systems should be fed from a appropriately placed
bottom drain through at least a 4 inch (110mm) pipe with as short a length and
fewer bends as possible (For optimum ow swept bends should be used). At the
end of the bottom drain line before entering the Nexus a valve is required so
that the line can be shut and the Nexus isolated.
For long bottom drains it is recommended that a purge valve line is installed to
remove solids that may settle in your bottom drain line. This should discharge
straight to waste (if possible) or into a suitably sized sump.
It is very important that when laying the bottom drain line that there is no section
where the pipework rises then falls as airlocks can form in this area which will
block ow. Figure 4 below describes what should and shouldn’t be done.
Pipework should be level until reaching the lterhouse where it should ideally go
through a swept bend 90 into the Nexus inlet.
Fig 3
From Pond
To Nexus
From Pond
To Nexus
Fig 4

Other manuals for Evolution Aqua Nexus Eazy 200

Related product manuals