EasyManua.ls Logo

Falcon 1990 - Aluminum Door Preparation; Aluminum Door Lock Stile Preparation; Aluminum Door Hinge Stile Preparation

Falcon 1990
8 pages
Print Icon
To Next Page IconTo Next Page
To Next Page IconTo Next Page
To Previous Page IconTo Previous Page
To Previous Page IconTo Previous Page
Loading...
7
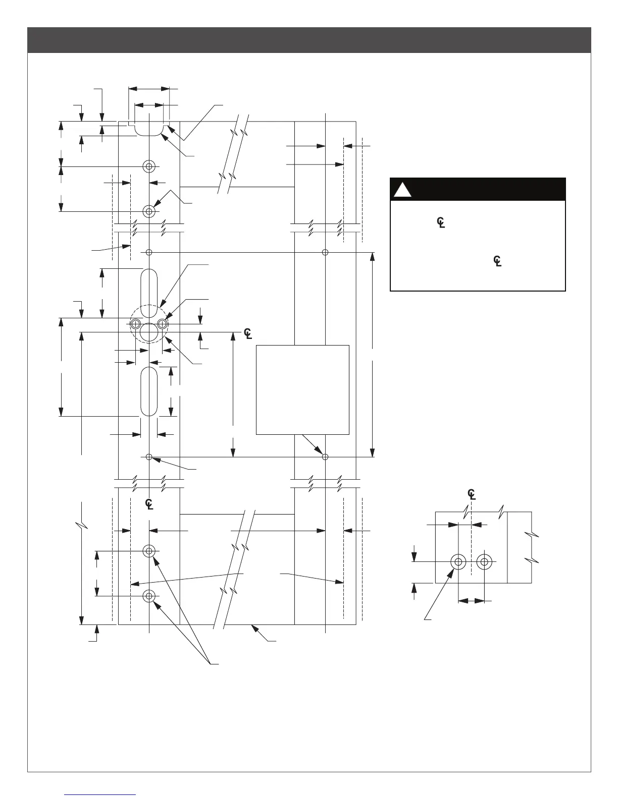
ALUMINUM DOOR PREPARATION
NOTES
!
Hex Bottom Bolt
Door Preparation
3/4"
3/8"
9/16"
#9 (0.196" dia.) thru
to 25/64" dia., 2 places
1-1/4"
7/8"
1-3/8"
1-3/8"
7/16"
1/8"
1-1/2"
7/16"
1/4"
3"
3-13/16"
6-1/4"
1/2"
41-5/16"
to
bottom
of door
E
See note
1-3/8"
7/8"
F
See
note
1/4" R
#9 (0.196" dia.)
thru inside face
c'sink 8
to
25/64" dia., 4 places
D
See note
E
Face of
door stop
Face of
door stop
Bottom of door
9/16"
dia.
ream
Cutout on inside face only
#9 (0.196" dia.)
thru inside face
1/4-20 tap, 2 places
Hinge StileLock Stile
1-1/2"
Face of
door stop
1-3/16" dia. thru
outside face for
rim cylinder
15/64" dia. c'sink
with 5/16" dia.
tool, 2 places
device
Surface Mounting
#9 (0.196" dia.)
thru inside face
1/4-20 tap, 2 places
Thru Bolting
1/4" dia. thru inside
face, 13/32" dia. thru
outside face, 2 places
device
Pullman (PL) and Rod Latch (RL)
Door Preparation
D: Dimension from door stop face to
housing is 3/4" minimum for
medium and wide stiles.
E and F: Dimension from door stop face
same as "D" or can vary to suit door
conditions.
to top or bottom latch can be the
inside face, c'sink 82˚
13/16"
13/16"

Related product manuals