EasyManua.ls Logo

Fantech SHR6904 - Connexions Électriques; Shr6904; Shr8004; Shr11004; Shr14104

Fantech SHR6904
48 pages
Print Icon
To Next Page IconTo Next Page
To Next Page IconTo Next Page
To Previous Page IconTo Previous Page
To Previous Page IconTo Previous Page
Loading...
35
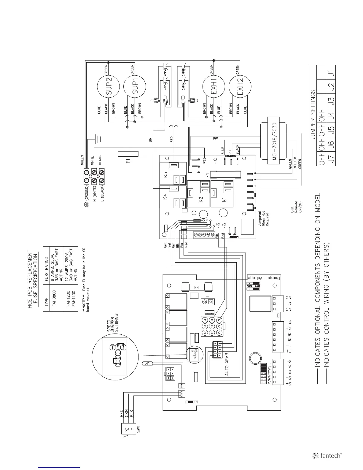
Connexions électriques SHR6904/SHR8004/SHR11004/SHR14104
Supply
Voltage
ONONON
HIGH
SPEEDS
LOW
5
5
V
JP5 JP3
7
5
V
1
2
0
V
9
0
V
LOW
JP3JP5
HIGH
120V
90V
75V
55V
SPEEDS