EasyManua.ls Logo

Fassi F 240.24 - Dimensions and Load Charts

Default Icon
53 pages
Print Icon
To Next Page IconTo Next Page
To Next Page IconTo Next Page
To Previous Page IconTo Previous Page
To Previous Page IconTo Previous Page
Loading...
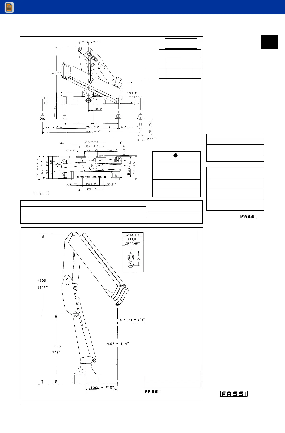
TECHNICAL DATA
F 240.24
9
c V
CON TUBAZIONI SUPPLEMENTARI
WITH SUPPLEMENTARY HOSES
AVEC TUYAUTERIE
SUPPLEMENTAIRE
MIT ZUSAETZLICHEN SCHLAEUCHEN
MASSIMA ALTEZZA SOTTOGANCIO.
HAUTEUR MAXIMUM SOUS CROCHET.
MAXIMUM HOOKING POSITION.
MAXIMALHOEHE BIS KRANHAKEN.
PESI, DIMENSIONI E POSIZIONE
BARICENTRO.
POIDS, DIMENSIONS ET POSITION
DU BARYCENTRE.
WEIGHT, DIMENSIONS AND
BARYCENTRE POSITION
GEWICHTE, ABMESSUNG UND POSITION
DES KRANSCHWERPUNKTE.
1848 6’ 1”
1848 6’ 1”
2264 7’ 5”
5960 19’ 7”
A
B
C
D
EXTRA
CO 1408
CO 1414
— MEZZERIA TIRANTI
— FIXING ROD CENTER
DISTANCE
— LIGNE MEDIANE
TIRANTS
— ABMESSUNG DER
BEFESTIGUNGSBRIDEN
M33 x 2
PESO GRU CON SERBATOIO NON RIFORNITO, STABILIZZATORI STANDARD
WEIGHT OF THE CRANE WITH EMPTY TANK, STANDARD STABILIZATION
POIDS DE LA GRUE AVEC RESERVOIR VIDE, STABILISATION STANDARD
KRANGEWICHT MIT LEEREM TANK UND STANDARDABSTUTZUNG
kg 3200
lbs 7055
F240.24
F240.24
View thousands of Crane Specifications on FreeCraneSpecs.com
View thousands of Crane Specifications on FreeCraneSpecs.com

Related product manuals