EasyManua.ls Logo

FATEK FBs-CB22 - Page 204

FATEK FBs-CB22
348 pages
Print Icon
To Next Page IconTo Next Page
To Next Page IconTo Next Page
To Previous Page IconTo Previous Page
To Previous Page IconTo Previous Page
Loading...
Advanced Function Instruction
7-40
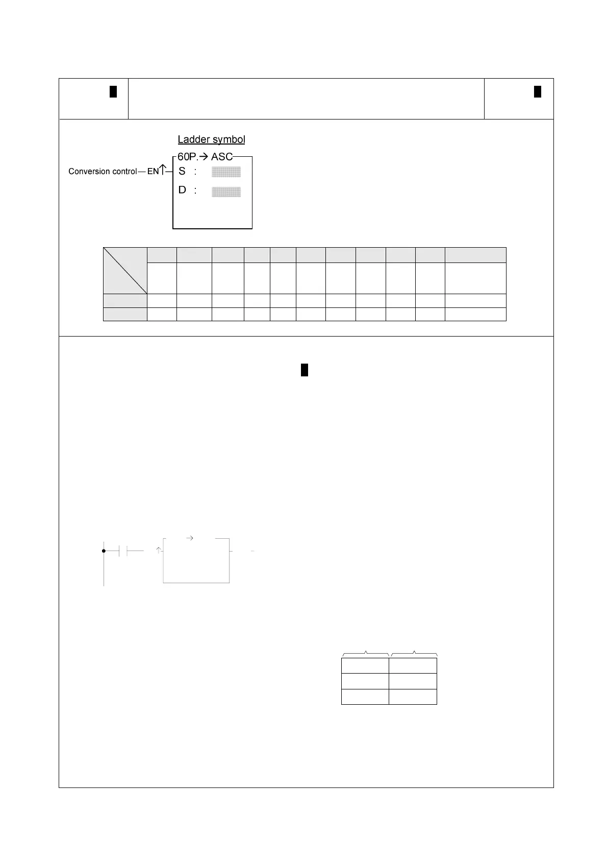
FUN 60 P
ASC
ASCII CONVERSION
FUN 60 P
ASC
S : Alphanumerics to be converted into ASCII code
D : Starting register storing ASCII results
WY WM WS TMR CTR HR OR SR ROR DR Alphanumeric
Range
Ope-
rand
WY0
WY240
WM0
WM1896
WS0
WS984
T0
T255
C0
C255
R0
R3839
R3904
R3967
R3968
R4167
R5000
R8071
D0
D4095
112
alphanumeric
S
D * *
When conversion control "EN" = 1 or "EN" ( P instruction) has a transition from 0 to 1, will convert
alphabets and numbers stored in S (S has a maximum of 12 alphanumeric character) into ASCII and store
it into registers starting from D. Each 2 alphanumeric characters occupy one 16-bit register.
The application of this instruction, most often, stores alphanumeric information within a program, and waits
until certain conditions occur, then converts this alphanumeric information into ASCII and conveys it to
external display devices which can accept ASCII code.
X0
EN
S : ABCDEF
60P. ASC
D :
ERR
R0
z The instruction at left converts the 6 alphabets
-ABCDEF into ASCII then stores it into 3 successive
registers starting from R0.
S D
High Byte Low Byte
R0 42B 41A
R1 44D 43C
Alphabet
ABCDEF
X0
Ö
R2 46F 45E