EasyManua.ls Logo

FATEK FBs-CB5 - Page 186

FATEK FBs-CB5
348 pages
Print Icon
To Next Page IconTo Next Page
To Next Page IconTo Next Page
To Previous Page IconTo Previous Page
To Previous Page IconTo Previous Page
Loading...
Advanced Function Instruction
7-22
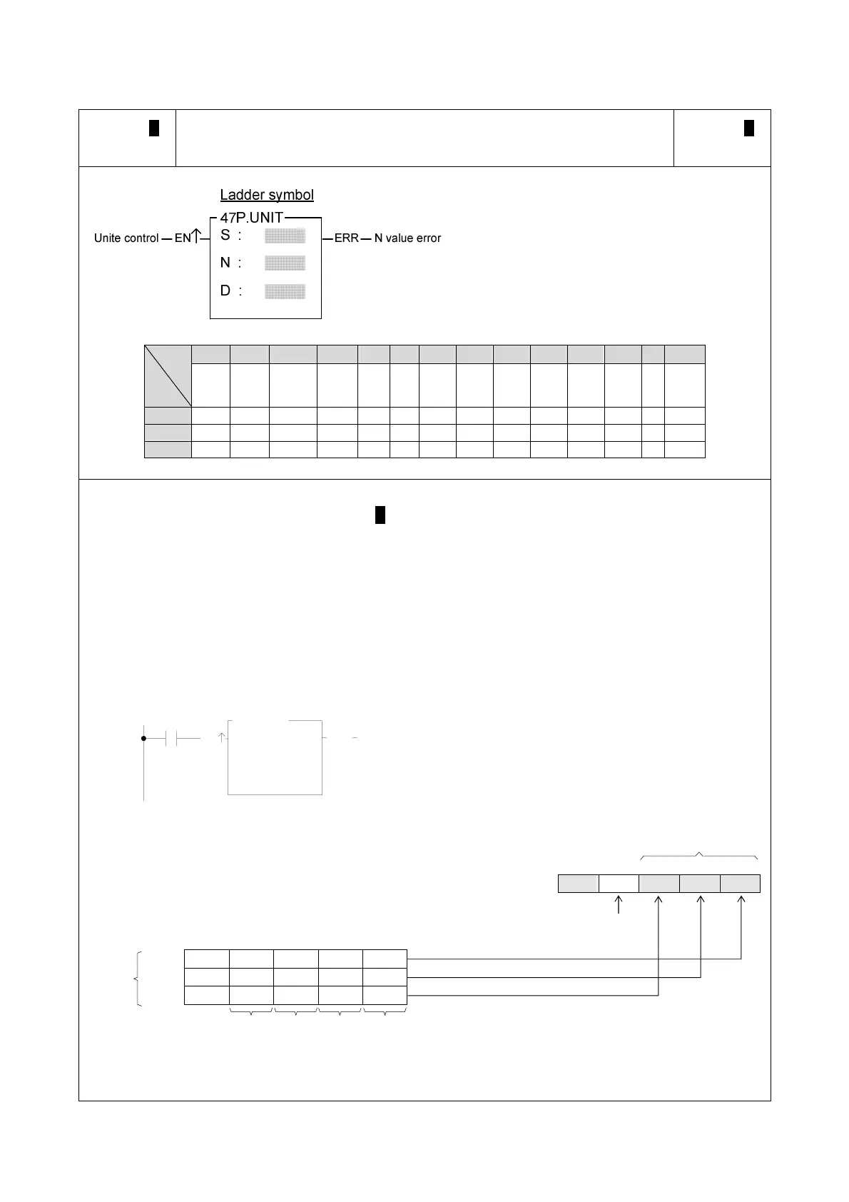
FUN 47 P
UNIT
NIBBLE UNITE
FUN 47 P
UNIT
S : Starting source register to be united
N : Number of nibbles to be united
D : Registers storing united data
S, N, D may combine with V, Z, P0~P9 to serve
indirect address application
WX WY WM WS TMR CTR HR IR OR SR ROR DR K XR
Range
Ope-
rand
WX0
WX240
WY0
WY240
WM0
WM1896
WS0
WS984
T0
T255
C0
C255
R0
R3839
R3840
R3903
R3904
R3967
R3968
R4167
R5000
R8071
D0
D4095
1
4
VZ
P0~P9
S
N
D * *
z When unite control "EN" = 1 or "EN" ( P instruction) has a transition from 0 to 1, take out the lowest
nibbles NB0, of N successive registers starting from S, and fill them into NB0, NB1, .....NBn-1 of D in
ascending order. Nibbles not yet filled in D (when N is odd) are filled with 0. (A nibble is comprised by 4 bits.
Starting from the lowest bit in the register, B0, each successive four bits form a nibble, so B0~B3 form nibble
0, B4~B7 form nibble 1, etc...).
z This instruction only provides WORD (16 bit) operand. Because of this, there are usually only 4 nibbles can
be involved. Therefore the effective range of N is 1~4. Beyond this range, will set the N value error flag
"ERR" to 1, and do not carry out this instruction.
47P.UNIT
WY 0
D :
3
R 0
S :
N :
X0
EN
ERR
z The instruction at left takes out NB0 from 3 registers, R0,
R1 and R2, and fills them into NB0~NB2 within WY0
register.
N3
NB3 NB2 NB1 NB0
D
W Y 00000 0100 00100001
Y15 Y0
Set the not united NB as 0
B15 B12 B11 B8 B7 B4 B3 B0
S R0 0001
N3 S1
R1 0010
S2
R2 0100
Ö
NB3 NB2 NB1 NB0 X0

Other manuals for FATEK FBs-CB5

Related product manuals