EasyManua.ls Logo

FATEK FBs-CB55 - Page 255

FATEK FBs-CB55
348 pages
Print Icon
To Next Page IconTo Next Page
To Next Page IconTo Next Page
To Previous Page IconTo Previous Page
To Previous Page IconTo Previous Page
Loading...
Advanced Function Instruction
7-91
FUN107 D P
T_FIL
TABLE FILL
FUN107 D P
T_FIL
Rs : Source data to fill, can be a constant or a register
Td : Starting register of destination table
L :Table length
Rs, Td may combine with V, Z, P0~P9 to serve indirect
address application
WX WY WM WS TMR CTR HR IR OR SR ROR DR K XR
Range
Ope-
rand
WX0
WX240
WY0
WY240
WM0
WM1896
WS0
WS984
T0
T255
C0
C255
R0
R3839
R3840
R3903
R3904
R3967
R3968
R4167
R5000
R8071
D0
D4095
16/32-bit
+/-
number
VZ
P0~P9
Ts
Td * *
L * 2~256
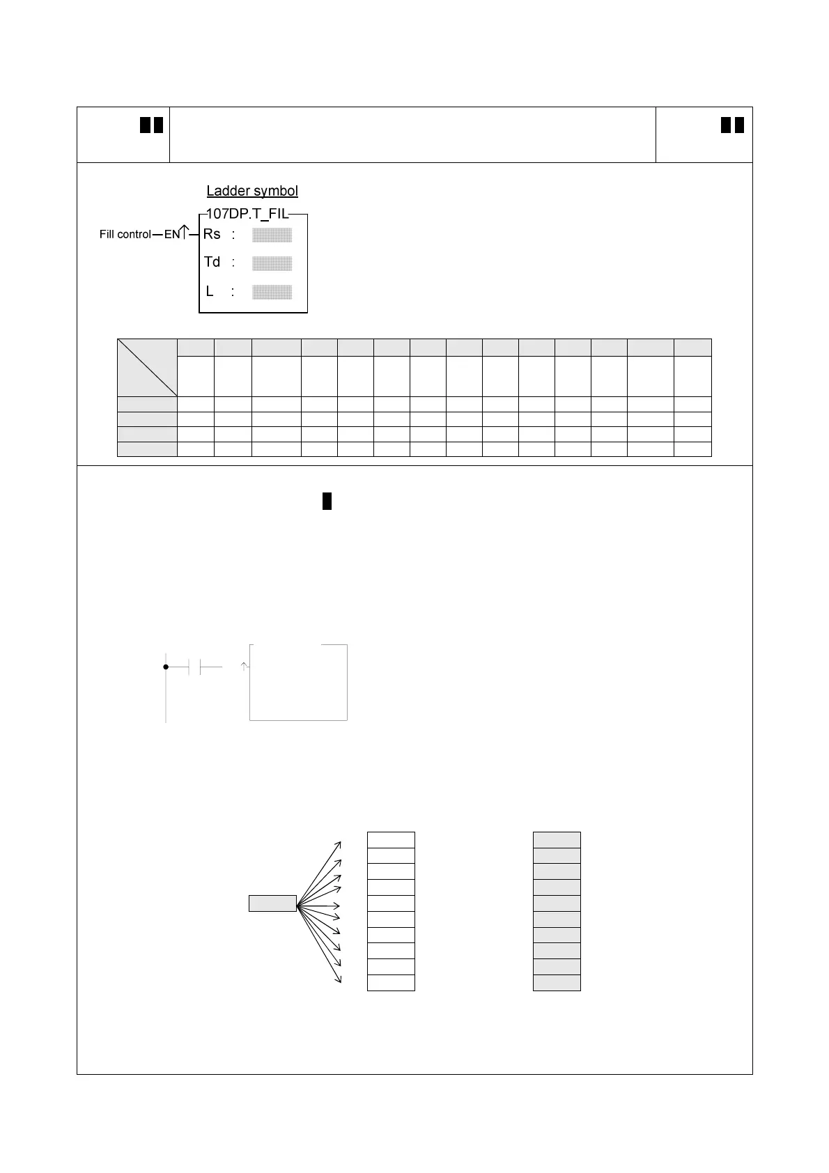
z When fill control "EN" = 1 or "EN" ( P instruction) has a transition from 0 to 1, the Rs data will be filled into all
the registers of the table Td.
z This instruction is mainly used for clearing the table (fill 0) or unifying the table (filling in the same values). It
should be used with the P instruction.
X0
EN
T
S :
Td :
L :
107P.T_FIL
5555
R 0
10
z The instruction at left will fill 5555 into the whole table
Td. The results are as shown in the diagram below.
Td Td
R0 1547
R0
5555
R1 2314
R1
5555
R2 7725
R2
5555
Rs
R3 0013
R3
5555
5555 R4 5247 R4 5555
R5 1925
R5
5555
R6 6744
R6
5555
R7 5319
X0
Ö
R7
5555
R8 9788
R8
5555
R9 2796
R9
5555
Before execution After execution

Other manuals for FATEK FBs-CB55

Related product manuals