EasyManua.ls Logo

FATEK FBs-CM22 - Page 237

FATEK FBs-CM22
348 pages
Print Icon
To Next Page IconTo Next Page
To Next Page IconTo Next Page
To Previous Page IconTo Previous Page
To Previous Page IconTo Previous Page
Loading...
Advanced Function Instruction
7-73
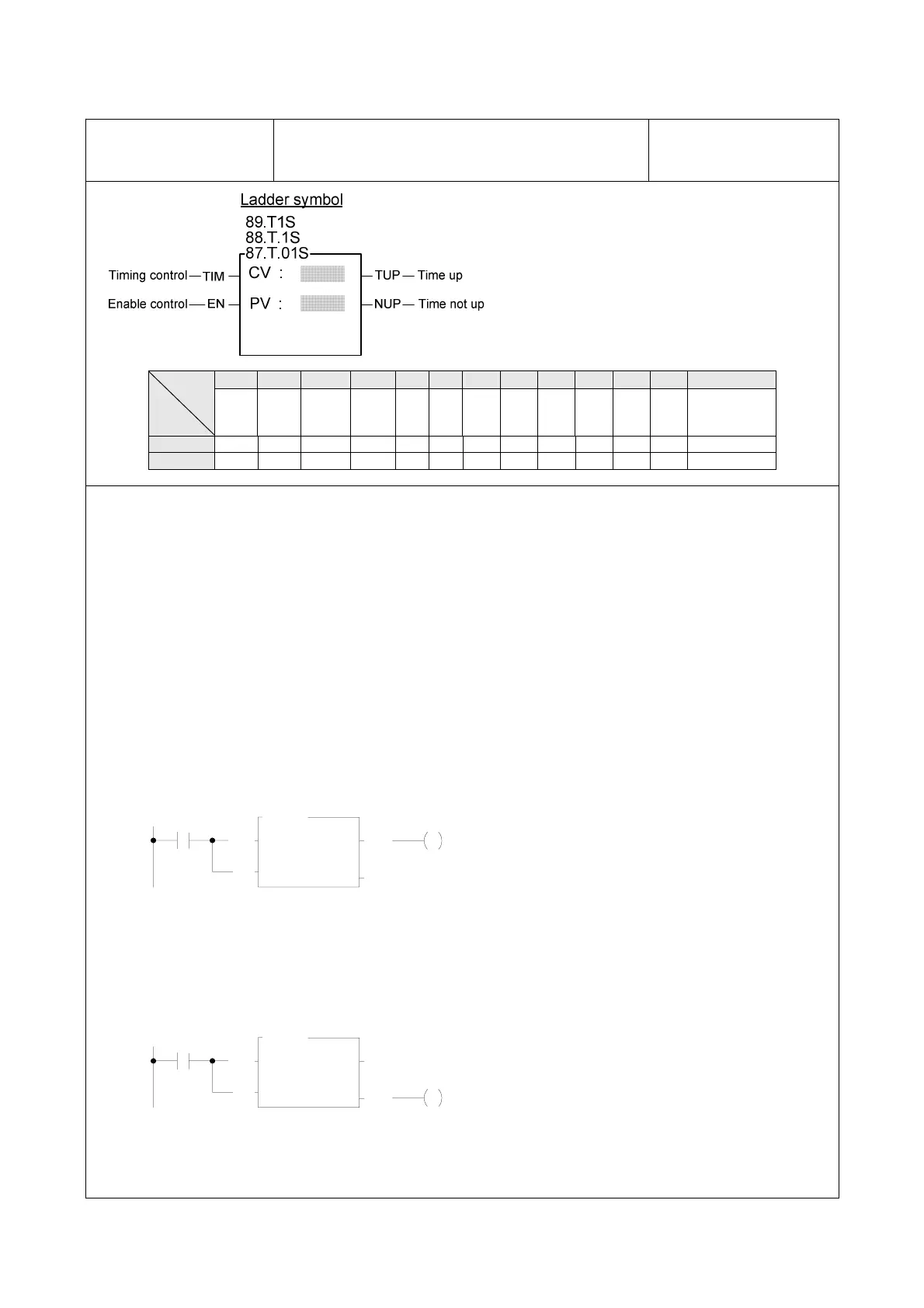
FUN89/FUN89D (T1S)
FUN88/FUN88D (T.1S)
FUN87/FUN87D (T.01S)
CUMULATIVE TIMER
FUN89/FUN89D (T1S)
FUN88/FUN88D (T.1S)
FUN87/FUN87D (T.01S)
CV : Register storing elapse time
(current value)
PV : Preset value of timer
WX WY WM WS TMR CTR HR IR OR SR ROR DR K
Range
Ope-
rand
WX0
WX240
WY0
WY240
WM0
WM1896
WS0
WS984
T0
T255
C0
C199
R0
R3839
R3840
R3903
R3904
R3967
R3968
R4167
R5000
R8071
D0
D4095
032767
or
02147483647
CV * *
PV
z The operation for this instruction is the same as that for the basic timer (T0~T255), except that the basic
timer only has a "timing control" input - when its input is 1 it starts timing, and when input is 0 it get clear.
Every time the input changes, it starts timing again and is unable to accumulate. Timing with this instruction
is only permissible when enable control "EN" = 1. With this instruction, when timing control "TIM" is 1, it is
the same as a basic timer, but when "TIM" is 0, it does not clear, but keeps the current value. If the timer
need to clear, then change enable control "EN" to 0. When timing control "TIM" is once again to be 1, it will
continue to accumulate from the previous value when the timer last paused. In addition, this instruction also
has two outputs, "Time up TUP" (when time up it is 1, usually it is 0) and "Time not up" (usually it is 1, when
time is up it is 0). Users can utilize input and output combinations to produce timers with various different
functions. For example:
z On delay energizing timer:
X0
TIM
CV :
10
R 0
89.T1S
TUP
Y0
NUP
EN
PV :
z This timer's output (Y0 in this example) is
normally not energized. When this timer's
input control (X0 in this example) is activated
(ON), only after delay by 10 sec will output
Y0 become energized (ON).
z On delay de-energizing timer:
X0
TIM
CV :
10
R 0
89.T1S
TUP
Y0
NUP
EN
PV :
z The output Y0 of this timer is usually
energized. When this timer's input control X0
is on, only after delay by 10 sec will the
output become de-energized (OFF).

Other manuals for FATEK FBs-CM22

Related product manuals