EasyManua.ls Logo

FATEK FBs-CM22 - Page 266

FATEK FBs-CM22
348 pages
Print Icon
To Next Page IconTo Next Page
To Next Page IconTo Next Page
To Previous Page IconTo Previous Page
To Previous Page IconTo Previous Page
Loading...
Advanced Function Instruction
7-102
Matrix Instructions
Fun No. Mnemonic Functionality Fun No. Mnemonic Functionality
120 MAND Matrix AND 126 MBRD Matrix Bit Read
121 MOR Matrix OR 127 MBWR Matrix Bit Write
122 MXOR Matrix XOR 128 MBSHF Matrix Bit Shift
123 MXNR Matrix XNOR 129 MBROT Matrix Bit Rotate
124 MINV Matrix Inverse 130 MBCNT Matrix Bit Count
125 MCMP Matrix Compare
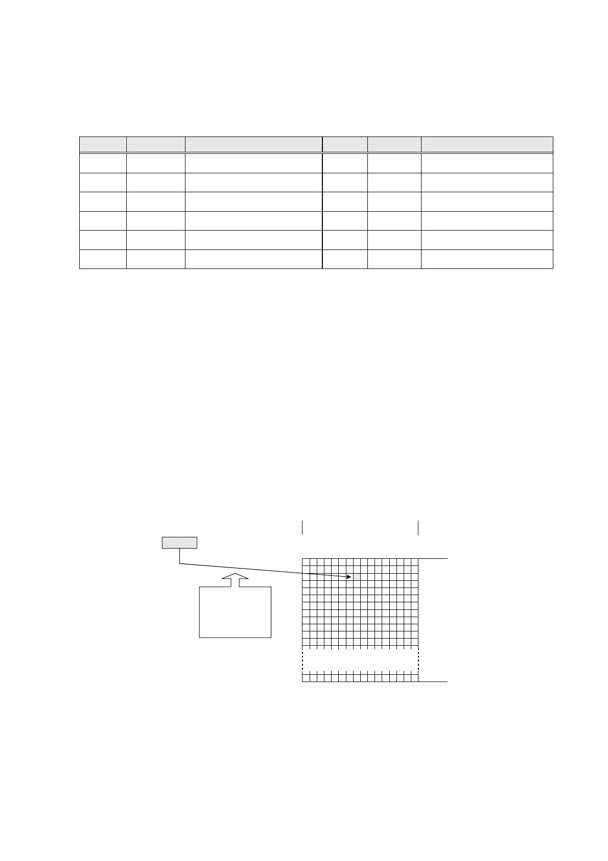
A matrix is comprised of 2 or more consecutive 16-bit registers. The number of registers comprising the
matrix is called the matrix length (L). One matrix altogether has L×16 bits (points), and the basic unit of the
object for each operation is bit.
The matrix instructions treats the 16×L matrix bits as a set of series points( denoted by M
0
to M
16L-1
).
Whether the matrix is formed by register or not, the operation object is the bit not numerical value.
Matrix instructions are used mostly for discrete status processing such as moving, copying, comparing,
searching, etc, of single point to multipoint (matrix), or multipoint-to-multipoint. These instructions are
convenient, important for application.
Among the matrix instructions, most instruction need to use a 16-bit register as a pointer to points a specific
point within the matrix. This register is known as the matrix pointer (Pr). Its effective range is 0 to 16L-1,
which corresponds respectively to the bits M
0
to M
16L-1
within the matrix.
Among the matrix operations, there are shift left/right, rotate left/right operations. We define the movement
toward higher bit is left direction, while the movement toward lower bit is right direction, as shown in the
diagram below.
←─ Width is 16 bit ─→
M
15
M
M
0
(right)
R0
R1
R2 1
R3
R4
y
y
y
y
y
y
y
y
y
y
y
y
y
y
y
y
RL1
length
L
M
16L
1
(left)
Pr=40, point
to M
40
,
Pr
40
M
40

Other manuals for FATEK FBs-CM22

Related product manuals