EasyManua.ls Logo

Felder CF 741 - Page 17

Felder CF 741
114 pages
Print Icon
To Next Page IconTo Next Page
To Next Page IconTo Next Page
To Previous Page IconTo Previous Page
To Previous Page IconTo Previous Page
Loading...
- 5 -
B05 V1/00 S1
B05
B05-2.2)
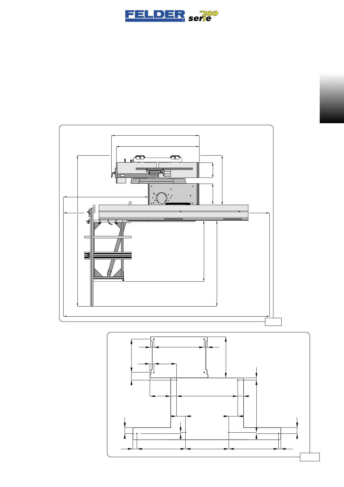
Platzbedarf CF 731 S
Benötigter Minimum- Platzbedarf:
Siehe Abb. 02
Nach Bedarf kann die Maschine auch
am Boden festgeschraubt werden.
Durchmesser der Befestigungsbohrun-
gen im Ständer: 11mm
Bohren der Befestigungslöcher
lt. Abb. 02A
61440
40693
70 749
110
529
26638
592
27
74
74
50
40
27647
502
253 70
110
607
16
16
Abb 02A
B05-2.2)
Dimensions of placement
CF 731 S
Required minimum space:
See fig. 02
The machine can also be bolted to the
floor if required.
Diameter of the mounting holes in the
stand: 11 mm
Drilling the securing holes
as per Fig. 02A
B05-2.2)
Ingombro CF 731 S
Ingombro minimo necessario:
Vedere fig. 02
Se necessario la macchina può essere
anche fissata al pavimento.
Diametro dei fori di fissaggio nel
montante: 11mm
Esecuzione dei fori di fissaggio
come da fig. 02A
1785
1688
310434
1012
3068
XL=6880 / X=6050 / F=5370
1740
1233
XL=2720 / X=2320 / F=1970
Abb 02

Related product manuals