EasyManua.ls Logo

Fer G3G - Page 10

Fer G3G
Print Icon
To Next Page IconTo Next Page
To Next Page IconTo Next Page
To Previous Page IconTo Previous Page
To Previous Page IconTo Previous Page
Loading...
G3G
10
ES
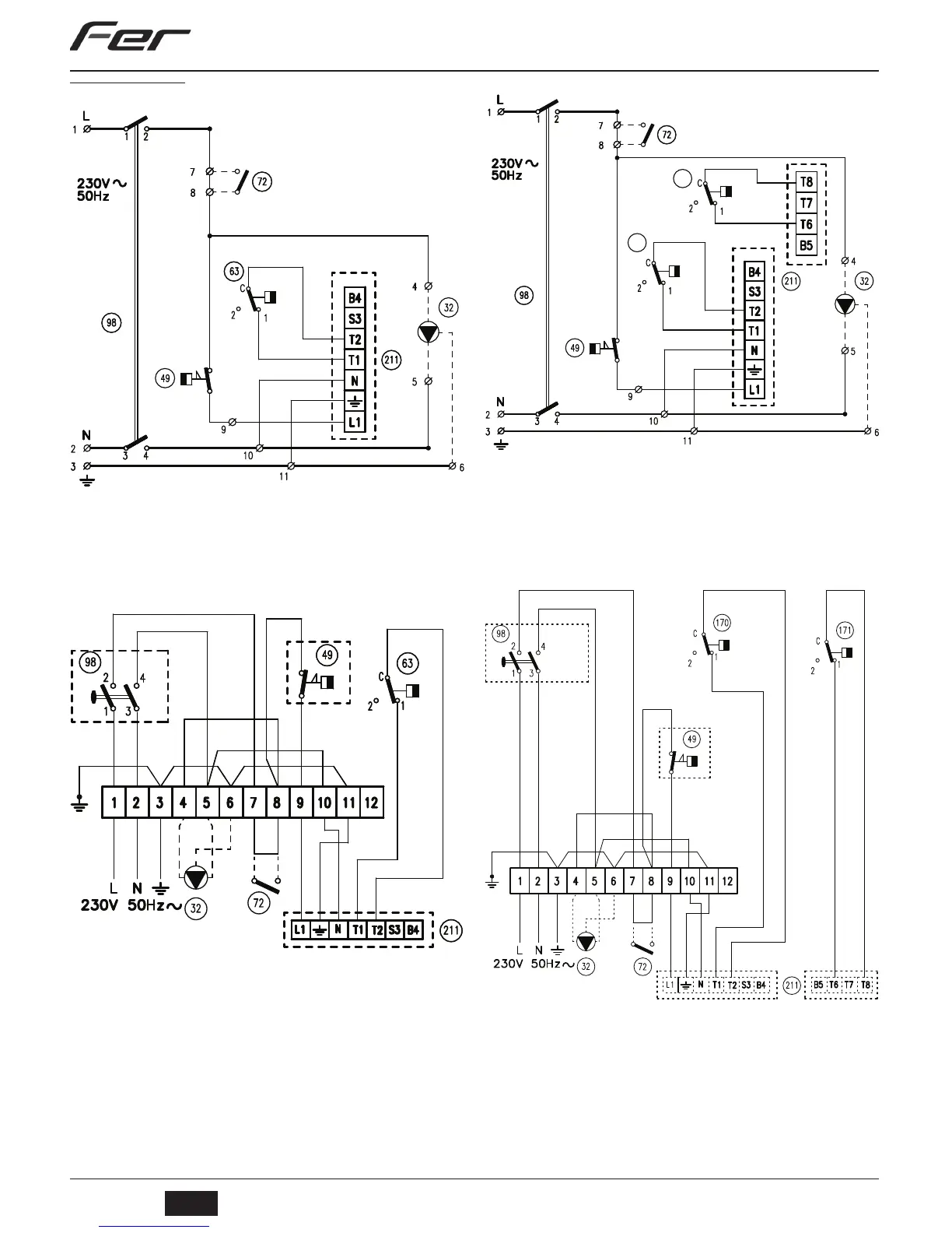
10.4 Esquema eléctrico
Esquema eléctrico general G3G 32÷63
fig. 17 - Esquema eléctrico general G3G 32÷63
Leyenda fig. 17 y fig. 18
32 Bomba de circulación de la calefacción (no suministrada)
49 Termostato de seguridad
72 Termostato de ambiente (no suministrado)
63 Termostato de regulación caldera
98 Interruptor
211 Conector del quemador (no suministrado)
Esquema eléctrico de conexión G3G 32÷63
fig. 18 - Esquema eléctrico de conexión G3G 32÷63
Esquema eléctrico general G3G 80 - 98
fig. 19 - Esquema eléctrico general G3G 80 - 98
Leyenda fig. 19 y fig. 20
32 Bomba de circulación de la calefacción (no suministrada)
49 Termostato de seguridad
72 Termostato de ambiente (no suministrado)
98 Interruptor
170 Termostato de regulación caldera 1ª etapa
171 Termostato de regulación caldera 2ª etapa
211 Conector del quemador (no suministrado)
Esquema eléctrico de conexión G3G 80 - 98
fig. 20 - Esquema eléctrico de conexión G3G 80 - 98
1
c
1
c
170
171
1
c
1
c
cod. 3540S532 - Rev. 04 - 03/2015

Related product manuals