EasyManua.ls Logo

Fer G3G - Page 19

Fer G3G
Print Icon
To Next Page IconTo Next Page
To Next Page IconTo Next Page
To Previous Page IconTo Previous Page
To Previous Page IconTo Previous Page
Loading...
G3G
19
FR
cod. 3540S532 - Rev. 03 - 10/2012
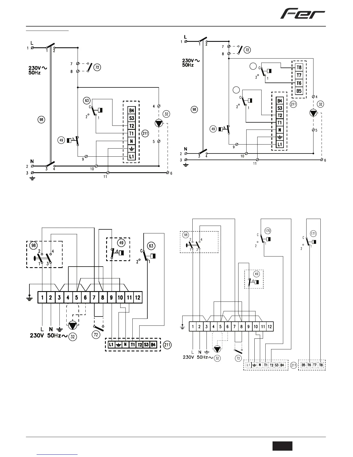
20.4 Schéma électrique
Schéma électrique de base G3G 32÷63
fig. 37 - Schéma électrique de base G3G 32÷63
Légende fig. 37 et fig. 38
32 Circulateur de chauffage (non fourni)
49 Thermostat de sécurité
72 Thermostat d'ambiance (non fourni)
63 Thermostat réglage chaudière
98 Interrupteur
211 Connecteur brûleur (non fourni)
Schéma électrique de raccordement G3G 32÷63
fig. 38 - Schéma électrique de raccordement G3G 32÷63
Schéma électrique de base G3G 80 - 98
fig. 39 - Schéma électrique de base G3G 80 - 98
Légende fig. 39 et fig. 40
32 Circulateur de chauffage (non fourni)
49 Thermostat de sécurité
72 Thermostat d'ambiance (non fourni)
98 Interrupteur
170 Thermostat de réglage chaudière 1er étage
171 Thermostat de réglage chaudière 2e étage
211 Connecteur brûleur (non fourni)
Schéma électrique de raccordement G3G 80 - 98
fig. 40 - Schéma électrique de raccordement G3G 80 - 98
1
c
1
c
170
171
1
c
1
c

Related product manuals