EasyManua.ls Logo

Fer G3G - Page 23

Fer G3G
Print Icon
To Next Page IconTo Next Page
To Next Page IconTo Next Page
To Previous Page IconTo Previous Page
To Previous Page IconTo Previous Page
Loading...
G3G
23
GR
cod. 3540S532 - Rev. 03 - 10/2012
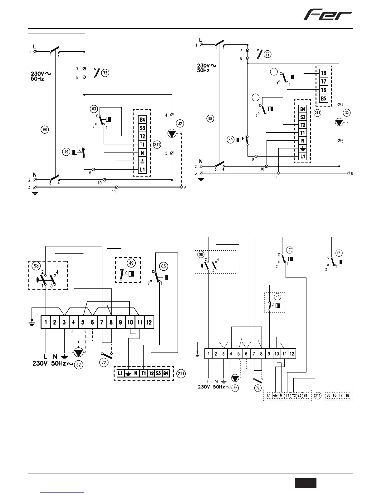
25.4 +OHNWULNȩ VFHGLȐJUDPPD
+OHNWULNȩ VFHGLȐJUDPPD DUFȒ9 OHLWRXUJȓD9 G3G 32Ȥ63
İȚț. 47 - +OHNWULNȩ VFHGLȐJUDPPD DUFȒ9 OHLWRXUJȓD9 G3G 32Ȥ63
/H]ȐQWD fig. 47 NDL fig. 48
32 .XNORIRUKWȒ9 TȑUPDQVK9 (GHQ GLDWȓTHWDL)
49 4HUPRVWȐWK9 DVIDOHȓD9
72 4HUPRVWȐWK9 SHULEȐOORQWR9 (GH GLDWȓTHWDL)
63 4HUPRVWȐWK9 UȪTPLVK9 OȑEKWD
98 'LDNȩSWK9
211 6ȪQGHVPR9
NDXVWȒUD (GHQ GLDWȓTHWDL)
'LȐJUDPPD VXQGHVPRORJȓD9 G3G 32Ȥ63
İȚț.48 - 'LȐJUDPPD VXQGHVPRORJȓD9 G3G 32Ȥ63
+OHNWULNȩ VFHGLȐJUDPPD DUFȒ9 OHLWRXUJȓD9 G3G 80 - 98
İȚț. 49 - +OHNWULNȩ VFHGLȐJUDPPD DUFȒ9 OHLWRXUJȓD9 G3G 80 - 98
/H]ȐQWD fig. 49 NDL fig. 50
32 .XNORIRUKWȒ9 TȑUPDQVK9 (GHQ GLDWȓTHWDL)
49 4HUPRVWȐWK9 DVIDOHȓD9
72 4HUPRVWȐWK9 SHULEȐOORQWR9
(GH GLDWȓTHWDL)
98 'LDNȩSWK9
170 4HUPRVWȐWK9 UȪTPLVK9 NDXVWȒUD6WȐGLR
171 4HUPRVWȐWK9 UȪTPLVK9 NDXVWȒUD6WȐGLR
211 6ȪQGHVPR9 NDXVWȒUD (GHQ GLDWȓTHWDL)
6FHGLȐJUDPPD KOHNWULNȒ9 VȪQGHVK9 G3G 80 - 98
İȚț.50 - 6FHGLȐJUDPPD KOHNWULNȒ9 VȪQGHVK9 G3G 80 - 98
1
c
1
c
170
171
1
c
1
c

Related product manuals