EasyManua.ls Logo

Fer G3G - Page 5

Fer G3G
Print Icon
To Next Page IconTo Next Page
To Next Page IconTo Next Page
To Previous Page IconTo Previous Page
To Previous Page IconTo Previous Page
Loading...
G3G
5
IT
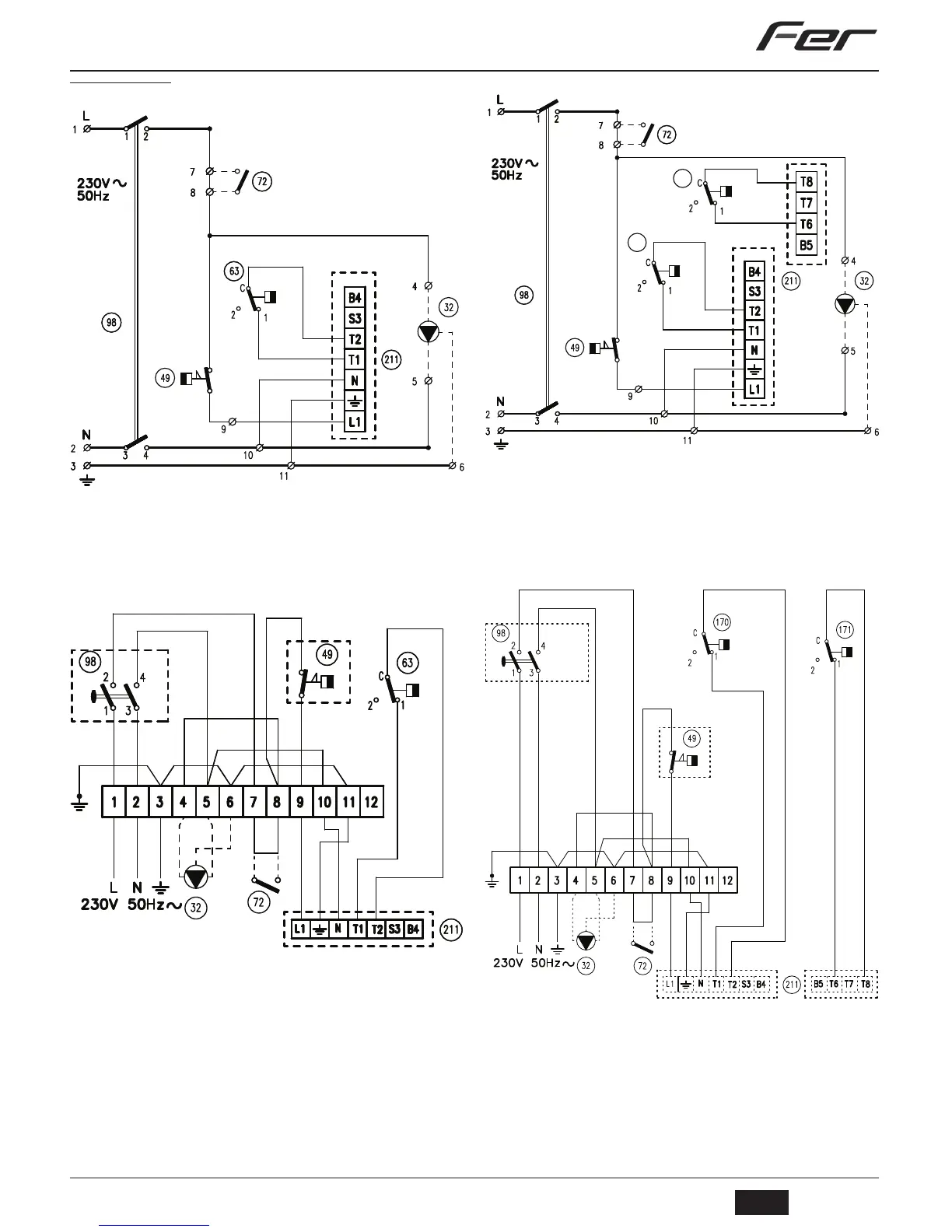
5.4 Schema elettrico
Schema elettrico di principio G3G 32÷63
fig. 7 - Schema elettrico di principio G3G 32÷63
Legenda fig. 7 e fig. 8
32 Circolatore riscaldamento (non fornito)
49 Termostato di sicurezza
72 Termostato ambiente (non fornito)
63 Termostato di regolazione caldaia
98 Interruttore
211 Connettore bruciatore (non fornito)
Schema elettrico di allacciamento G3G 32÷63
fig. 8 - Schema elettrico di allacciamento G3G 32÷63
Schema elettrico di principio G3G 80 - 98
fig. 9 - Schema elettrico di principio G3G 80 - 98
Legenda fig. 9 e fig. 10
32 Circolatore riscaldamento (non fornito)
49 Termostato di sicurezza
72 Termostato ambiente (non fornito)
98 Interruttore
170 Termostato di regolazione caldaia 1° Stadio
171 Termostato di regolazione caldaia 2° Stadio
211 Connettore bruciatore (non fornito)
Schema elettrico di allacciamento G3G 80 - 98
fig. 10 - Schema elettrico di allacciamento G3G 80 - 98
1
c
1
c
170
171
1
c
1
c
cod. 3540S532 - Rev. 04 - 03/2015

Related product manuals