EasyManua.ls Logo

Fermax 8045 - E 1.8 Door Phone System: CityCom III Basic Version - Wiring

Fermax 8045
64 pages
Print Icon
To Next Page IconTo Next Page
To Next Page IconTo Next Page
To Previous Page IconTo Previous Page
To Previous Page IconTo Previous Page
Loading...
Pag. 38
Technical
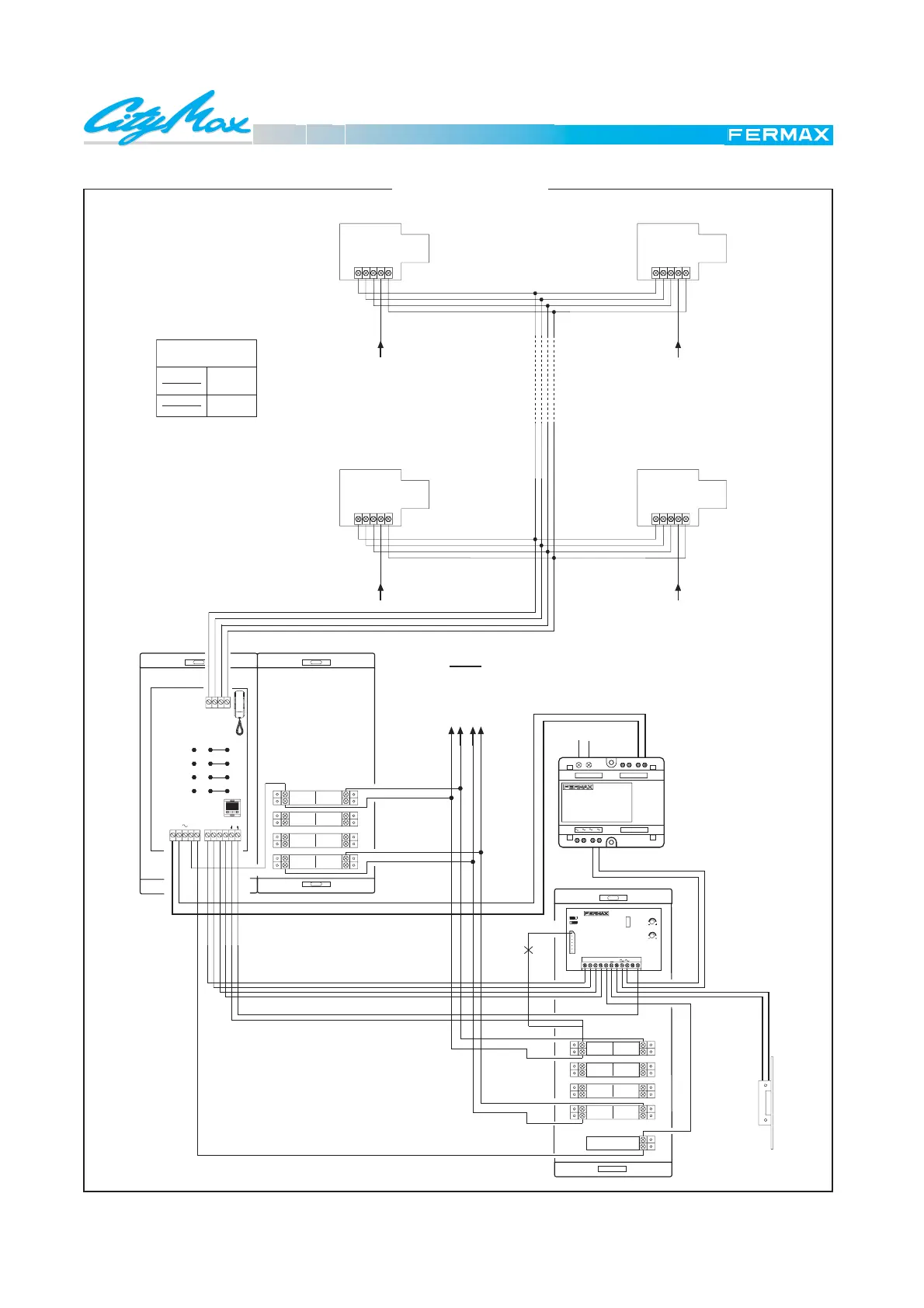
WIRING DIAGRAM
E 1.8 DOOR PHONE SYSTEM
CITYCOM III. BASIC VERSION
F
1
7
A
1
P
1
T
2
T
n-1
TT
n
CC
1
P
B1
Vac
-
-
+- +-
312 64
312 64312 64
312 64
2
n
1
n-1
1
CN5
CN6
CN7
CN8
23
2
n
1
n-1
PRIM
Cp
-+
3
4C
12
Cp
6
Cp
NR-1920
3216
CN1
1
2
3
UF
6
1
2
3
PT2
PT1
Ab
Cp2
Ab
Tc
Cp1
INT.
EXT.
Call
Call
To the call
terminal (4)
of each
telephone.
UNIVERSAL
AMPLIFIER
Call Call
SECTION TABLE
Distances
up to 300 meters
0.5 mm
1 mm
2
2
cut
Calls

Related product manuals