EasyManua.ls Logo

Fermax 8045 - E 2.3 Video Phone System: Two Entrances - Wiring; Wiring Diagram: Entrance Connections

Fermax 8045
64 pages
Print Icon
To Next Page IconTo Next Page
To Next Page IconTo Next Page
To Previous Page IconTo Previous Page
To Previous Page IconTo Previous Page
Loading...
Pag. 46
Technical
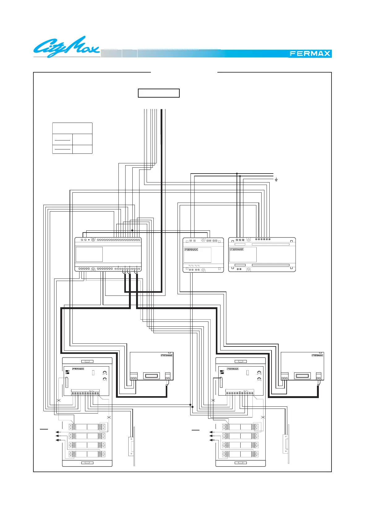
WIRING DIAGRAM
ENTRANCES
E 2.3 VIDEO DOOR SYSTEM
BUILDING WITH TWO ENTRANCES
F
1
3
A
1
P
C
1
A
7
2
P
2
C
2
F
A
6
FE
-+-+-+
PRIM SEC. 18Vdc220V
-+-
PRIM
+
Vac
21
nn-1 n-1n
12
6321
-+
CT
COAX
CONECTOR TEST
DE PRUEBA
CONECTOR TEST
DE PRUEBA
-+CT VM -+CT VM
HI J FALK BCDE G SV SV E1 E2
-+5M
12 436OQPR UST VW ZYX
CN1
1
2
3
UF
6
1
2
3
PT2
PT1
Ab
Cp2
Ab
Tc
Cp1
INT.
EXT.
CN1
1
2
3
UF
6
1
2
3
PT2
PT1
Ab
Cp2
Ab
Tc
Cp1
INT.
EXT.
SECTION TABLE
Distances
up to 300 meters
0.5 mm
1 mm
2
2
(*) Cut the common pushbutton wire (according to the panel model).
To the call
terminal (4)
of each
telephone.
UNIVERSAL
AMPLIFIER
(*)
CUT
UNIVERSAL
AMPLIFIER
To the call
terminal (4)
of each
telephone.
(*)
CUT
TO THE FLOORS
+
CALLS
(*)
(*)
CUT CUT
Calls
Calls

Related product manuals