EasyManua.ls Logo

Fermax F9445 - Page 35

Fermax F9445
Print Icon
To Next Page IconTo Next Page
To Next Page IconTo Next Page
To Previous Page IconTo Previous Page
To Previous Page IconTo Previous Page
Loading...
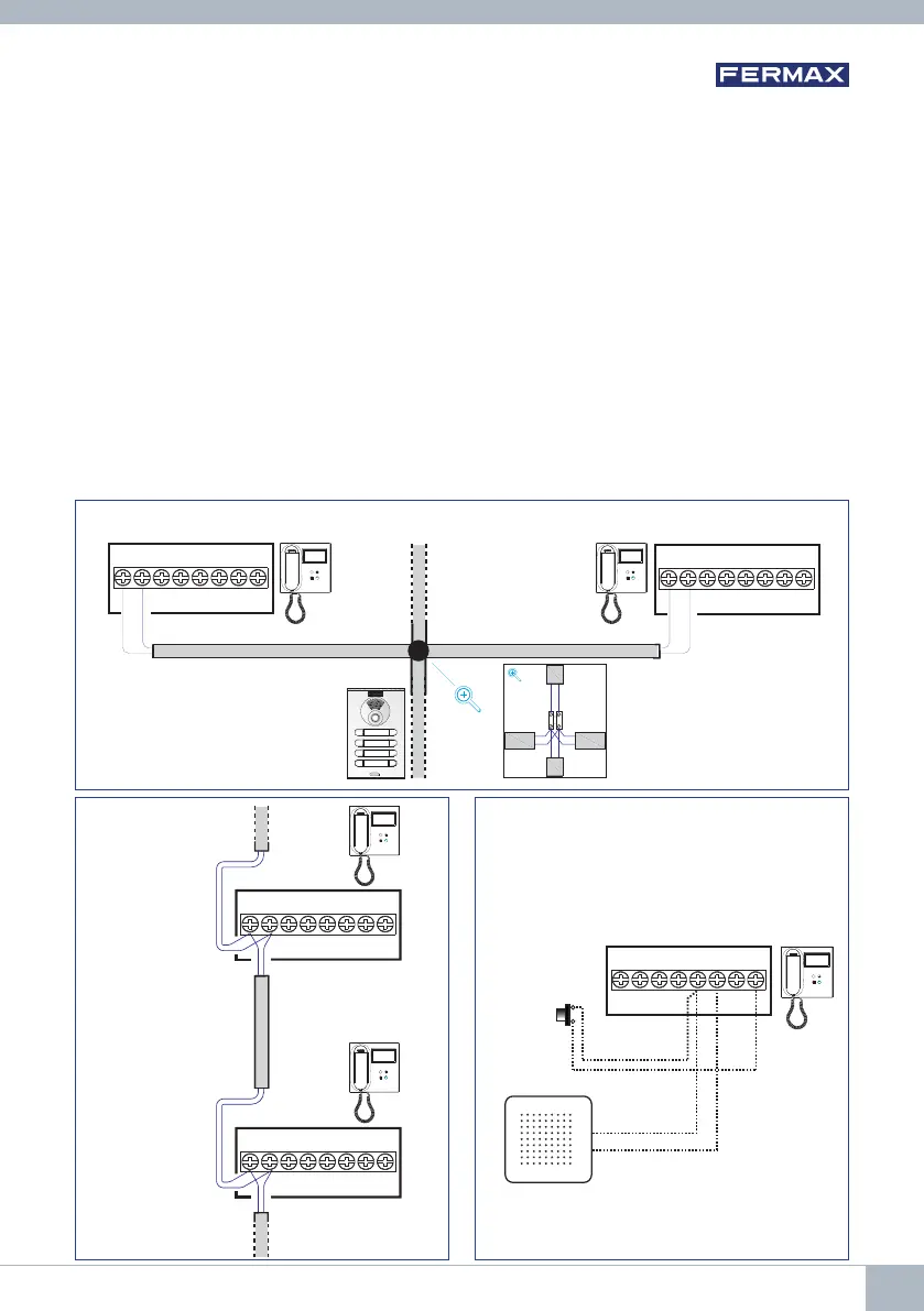
Monitor Connectors:
Bin,Bin: Data, audio and video input.
Bout,Bout: Data, audio and video input (cascade connection).
T, -: Apartment door call button (P1).
A+, -: Option of connection with the following devices:
• Call extender ref. 2040.
• Light and buzzer commander ref. 2438.
F1: Additional function. (Negative output “-” / command transmission, see chapter
Buttons: Auxiliary function F1).
JP1: Integrated line adapter bridge
Top: Adaptation type A.
• Centre: Adaptation type C.
• Bottom: Without line adaptation: OFF, (by default).
CASCADED
DISTRIBUTION
TB
in
-
B
out
+A F1
TB
in
-
B
out
+A F1
F1
F1
BB
TB
in
-
B
out
+A F1
TB
in
-
B
out
+A F1
F1 F1
EXTENSIONS:
- Call extender: Ref. 2040
- Doorbell: P1
TB
in
-
B
out
+A F1
F1
Ref. 2040
P1
DUOX VEO MONITOR 7

Table of Contents

Related product manuals