EasyManua.ls Logo

Ferroli divaproject C24 - Page 18

Ferroli divaproject C24
Print Icon
To Next Page IconTo Next Page
To Next Page IconTo Next Page
To Previous Page IconTo Previous Page
To Previous Page IconTo Previous Page
Loading...
DIVAPROJECT C24
18
ES
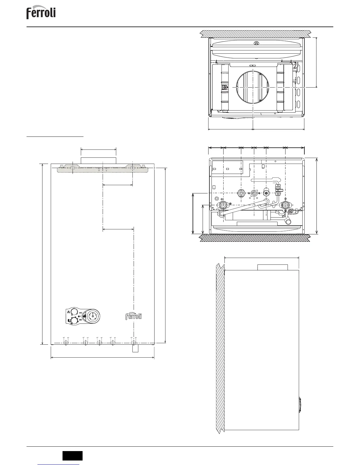
5. CARACTERÍSTICAS Y DATOS TÉCNICOS
Tabla. 4 - Leyenda de las figuras del cap. 5
5.1 Dimensiones y conexiones
fig. 8 - Vista frontal
fig. 9 - Vista superior
fig. 10 - Vista inferior
fig. 11 - Vista lateral
7
Entrada de gas
39
Limitador del caudal de agua
8
Salida de ACS
42
Sensor de temperatura AS
9
Entrada de AS
44
Válvula del gas
10
Ida a calefacción
49
Termostato de seguridad
11
Retorno de calefacción
56
Vaso de expansión
14
Válvula de seguridad
74
Llave de llenado de la instalación
19
Cámara de combustión
78
Cortatiro
22
Quemador
81
Electrodo de encendido y detección
27
Intercambiador de cobre para calefacción y ACS
95
Válvula desviadora
32
Circulador de calefacción
114
Presostato del agua
34
Sensor temperatura calefacción
126
Termostato de humos
36
Purgador de aire automático
194
Intercambiador AS
37
Filtro de entrada de agua fría
241
Baipás automático
38
Flujostato
700
680
400
117
120
Ø
131
184
216
208
330
178
126
60 76 54 50 80 80
10
897
11
330
FRG*5HY

Related product manuals