EasyManua.ls Logo

Ferroli optima 601 - Gas Supply

Ferroli optima 601
32 pages
Print Icon
To Next Page IconTo Next Page
To Next Page IconTo Next Page
To Previous Page IconTo Previous Page
To Previous Page IconTo Previous Page
Loading...
601
14
Flush out the water system.
Note - The maximum inlet cold water pressure must not exceed 10 bar (145 P.S.I.) and a water
governor or a pressure reducing valve will be required if the pressure is in excess of 5 bar (72 P.S.I.).
Ensure all pipework is adequately supported.
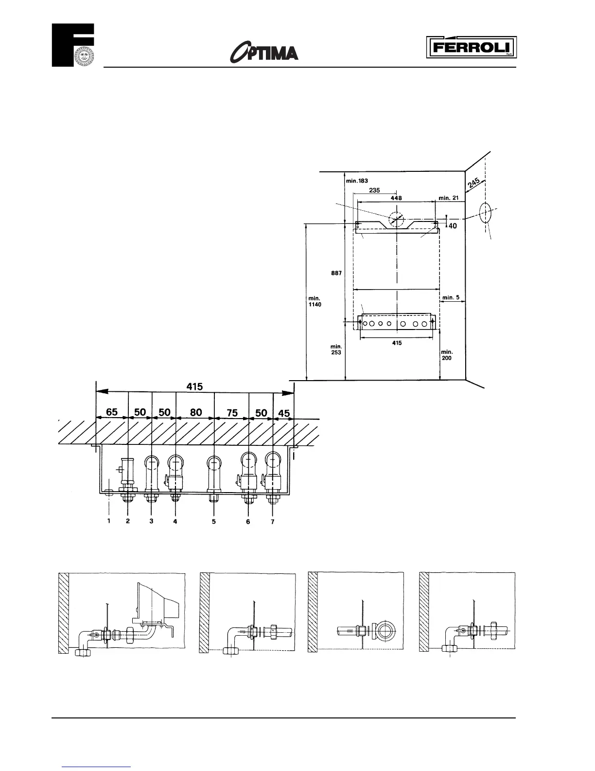
Drilling template
5.0 CONNECTING THE BOILER
2 Gas 22 mm
3 Domestic Hot Water
outlet 15 mm
5 Outlet central heating
safety valve 15 mm
4 Domestic Cold Water inlet 15 mm
6 Central Heating flow outlet 22 mm
7 Central Heating return inlet 22 mm
Important Note - Always use two spanners to prevent twisting of soft copper pipework.
Note - The central heating safety valve (5) should be piped 15 mm to discharge safely outside the property.
Fig. 10
1 = Electrical cable entry
2 = Gas supply
3 = Domestic Hot Water outlet
4 = Domestic Cold Water Inlet
5 = Outlet Central Heating safety valve
6 = Central Heating flow outlet
7 = Central Heating return inlet
2 = 22 mm
3-4-5 = 15 mm
6-7 = 22 mm
Fig. 11
Side flue outlet
Diam. min. 118 mm
Fixing stud
boiler
Upper bracket
Rear flue outlet
Diam. min. 118 mm
Boiler = 480 mm
Lower bracket

Related product manuals