EasyManua.ls Logo

FGH 2000 Series - Wire EIA-485 Mode (RS-485); 4-Wire EIA-422-A (RS-422)

FGH 2000 Series
18 pages
Print Icon
To Next Page IconTo Next Page
To Next Page IconTo Next Page
To Previous Page IconTo Previous Page
To Previous Page IconTo Previous Page
Loading...
SERIES 2000 COMMUNICATIONS MANUAL 3
M41 Issue 1.1
3. The network should be wired as a daisy chain, taking the wires in to one instrument
and hence on to the next. Wiring spurs should be avoided. Take care to continue the
cable screen on to the next instrument.
4. For long cable runs or noisy environments it may be necessary to fit a terminating
resistor to the network. The terminator ( a 220Ω resistor ) should be fitted between
RX+ and RX- on both the computer and the furthest instrument. For two wire networks
this resistor should be fitted at the computer end only. Only one such resistor should
be fitted on each wire pair.
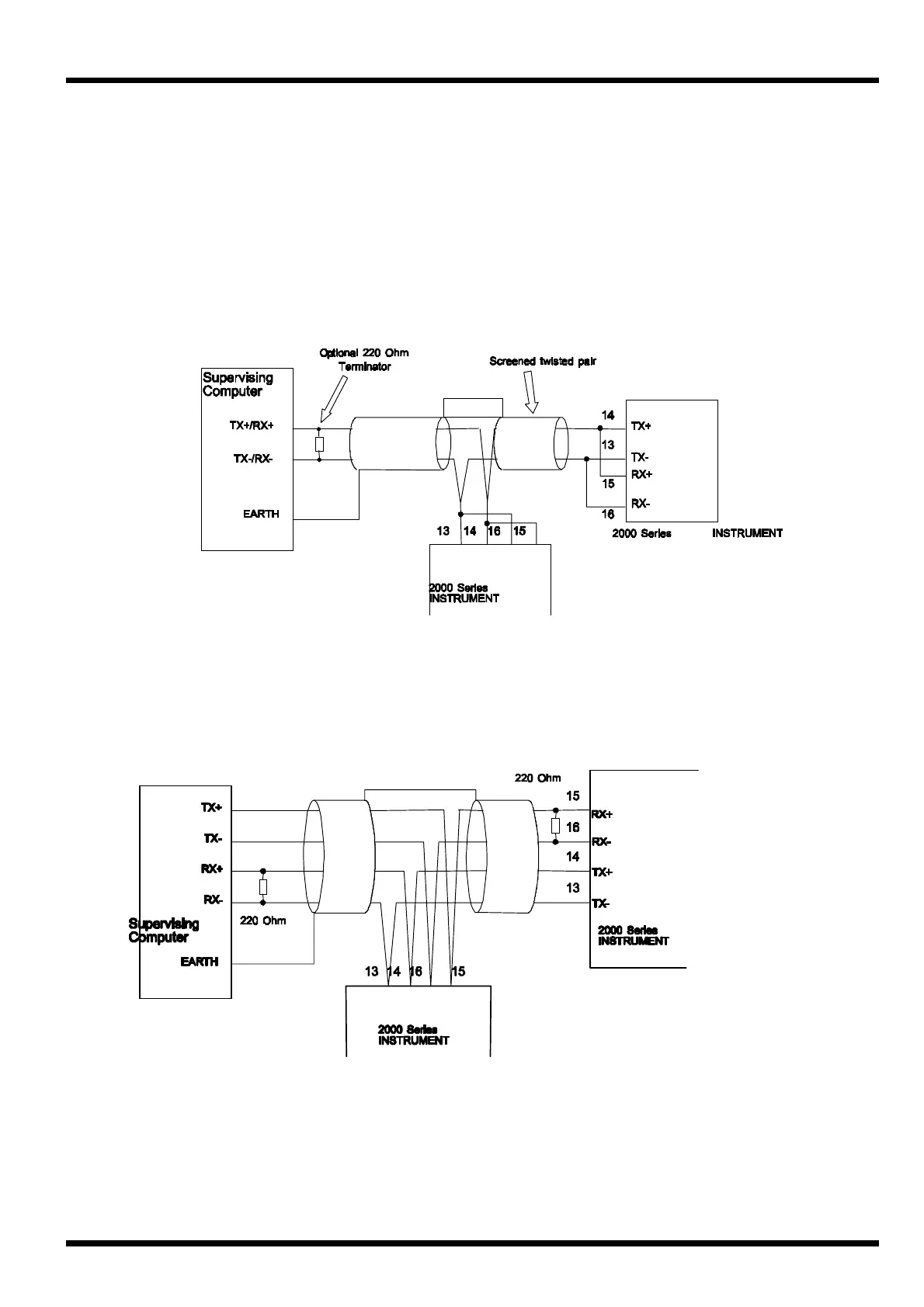
2.2 2 Wire EIA-485 Mode (RS-485)
This diagram shows the connection for EIA-485 mode. Note the use of screened cable. This
connection method may be continued on to other instruments up to the maximum allowed.
2.3 4-Wire EIA-422-A (RS-422)
This diagram shows the connection for EIA-422 mode. Note the use of screened cable.
This connection method may be continued on to other instruments up to the maximum
allowed.