EasyManua.ls Logo

Fiessler AKAS-3PM - Page 47

Fiessler AKAS-3PM
58 pages
Print Icon
To Next Page IconTo Next Page
To Next Page IconTo Next Page
To Previous Page IconTo Previous Page
To Previous Page IconTo Previous Page
Loading...
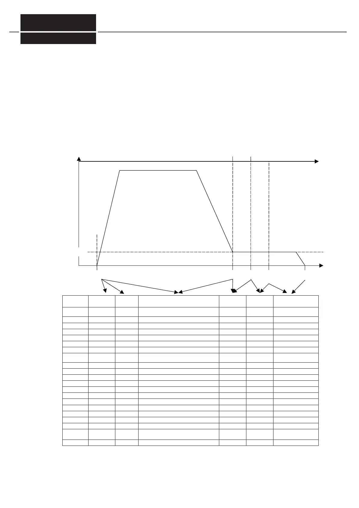
Signale in Abhängigkeit von Zeit, Weg, Geschwindigkeit
8
FIESSLER
E L E K T R O N I K
AKAS3P M/F
(same as for AKAS3 M/F)
Box bend stroke from TDC >12mm above clamping point with max. machine overrun of
5mm
Status Stop
FP
pressed
Fast closing
1.half of
slow closing
2.half of
slow closing
Bending speed
Safety PLC
OUT
FUO 0/1 1/0 1/0 1/0 1/0 1/0
FUS 0/0 1/1 1/1 1/1 1/1 1/1
SGO 0/X 0/X 0/1 1/0 1/0 1/0
SGS 0/0 0/0 0/0 1/1 1/1 1/1
NC out
SP 0 0 0 1 1 1
Manual
signal OUT
KAST 1 0 0 0 0 0
AKAS OUT
OSSD1 0 0 1 1 1 1
OSSD2 0 0 1 1 1 1
SGA 1 1 1 1 1 1
HUSP 1 1 1 1 1 1
Receivers
E5 inactive blanked blanked blanked blanked blanked
E6 inactive blanked blanked blanked blanked blanked
E3 inactive blanked blanked blanked active 1 blanked
E4 inactive blanked blanked blanked blanked blanked
E1 inactive active 1 active 1 active 1
(for 500ms)
blanked blanked
E2 inactive active 1 active 1 blanked blanked blanked
aktive 1 means receiver is active and has to be free
Speed
10mm/s
>12mm
TDC
12 mm 0 mm
clamping
-x mm
BDC
7mm
0 s min.500ms
Stroke
Time
Doku Nr. 1379 Stand 27.1.2017 /Aui
I/O signals depending on time, moving distance and movementspeed
8