EasyManua.ls Logo

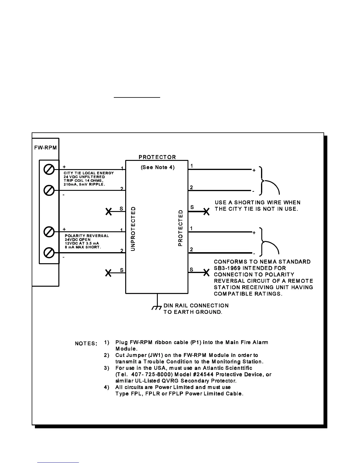
FIREWOLF FW-C2Z - Dact; Dialer Module (Fw-Dact) Terminal Connections; POLARITY REVERSAL and CITY TIE MODULE (MODEL: FW-RPM) TERMINAL CONNECTIONS; Fig.14: FW-RPM Polarity Reversal and City Tie Module Terminal Connections

Default Icon
36 pages
Print Icon
To Next Page IconTo Next Page
To Next Page IconTo Next Page
To Previous Page IconTo Previous Page
To Previous Page IconTo Previous Page
Loading...
Page 20 of 36
Fig.14: FW-RPM Polarity Reversal and City Tie Module Terminal Connections
7.5 DACT / Dialer MODULE (FW-DACT) TERMINAL CONNECTIONS
See the FW-DACT Manual (LT-639NAP) for connection information.
7.6 POLARITY REVERSAL and CITY TIE MODULE (MODEL: FW-RPM) TERMINAL CONNECTIONS
See Appendix for Module specifications. Wire as shown using proper wire gauges.
Note that for use in the USA, the installer MUST add an Atlantic Scientific (Tel. 407-725-8000) Model #24544 Protective Device, or
similar ULI-Listed QVRG Secondary Protector, as shown.
Note: The Terminal Blocks are “depluggable” for ease of wiring.
The City Tie Interface is Not Power Limited.
Either the FW-RPM’s City Tie or Reverse Polarity Interface may be used, but not both.

Table of Contents