EasyManua.ls Logo

Flowserve Pump - Mark 3 Unitized Self Priming Pump, Group 2; Mark 3 Recessed Impeller Pump, Group 2

Flowserve Pump
68 pages
Print Icon
To Next Page IconTo Next Page
To Next Page IconTo Next Page
To Previous Page IconTo Previous Page
To Previous Page IconTo Previous Page
Loading...
MARK 3 USER INSTRUCTIONS ENGLISH 71569102 08-06
Page 62 of 68 flowserve.com
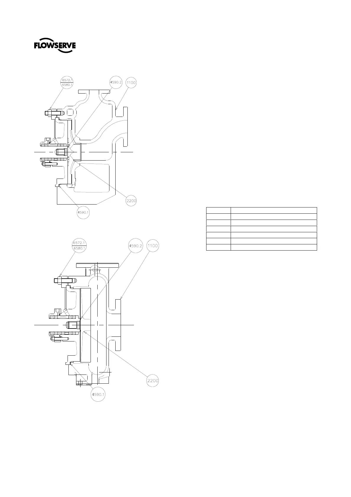
8.5 Mark 3 Unitized Self Priming pump, Group 2
8.6 Mark 3 Recessed Impeller pump, Group 2
Item Description
1100 Casing
2200 Impeller
4590.1 Gasket cover
4590.2 Gasket - impeller
6572.1 Stud - casing
6580.1 Nut - casing

Table of Contents

Related product manuals