EasyManua.ls Logo

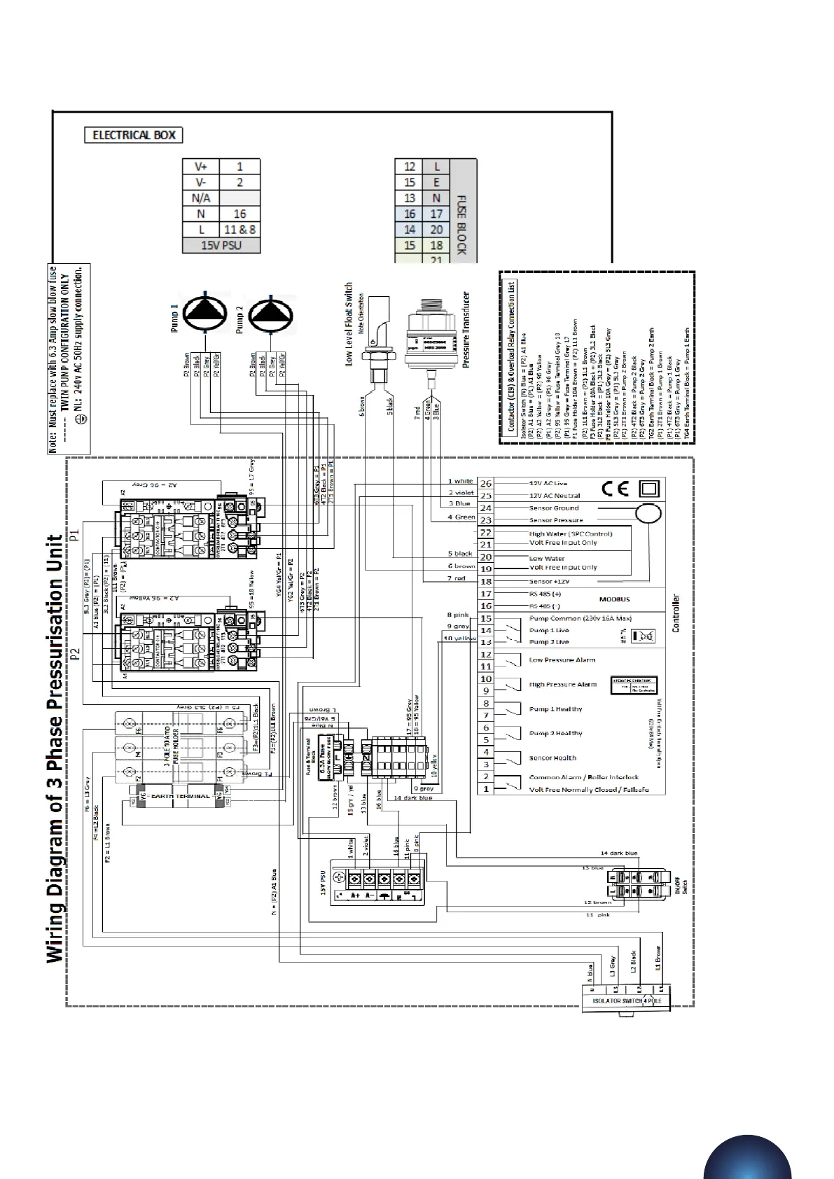
FLOWTECH flowpress WMDA - Wiring Location List; Wiring Diagram - 3 Phase

Default Icon
35 pages
Print Icon
To Next Page IconTo Next Page
To Next Page IconTo Next Page
To Previous Page IconTo Previous Page
To Previous Page IconTo Previous Page
Loading...
Wiring location list
Wiring diagram – 3 Phase
flowpress WMDA Pressurisation Units
27